Plan Pricing

$0

BRADBURY

M3277A2RD-0DB
  • Total Area:3486 Sq. Ft.
  • Garage Area:575 Sq Ft
  • Garage Size:3
  • Stories:3
  • Bedrooms:5
  • Full Baths:3
  • Half Baths:1
  • Width:45'-0"
  • Depth:57'-6"
  • Height:22'-0"
  • Foundation:Basement
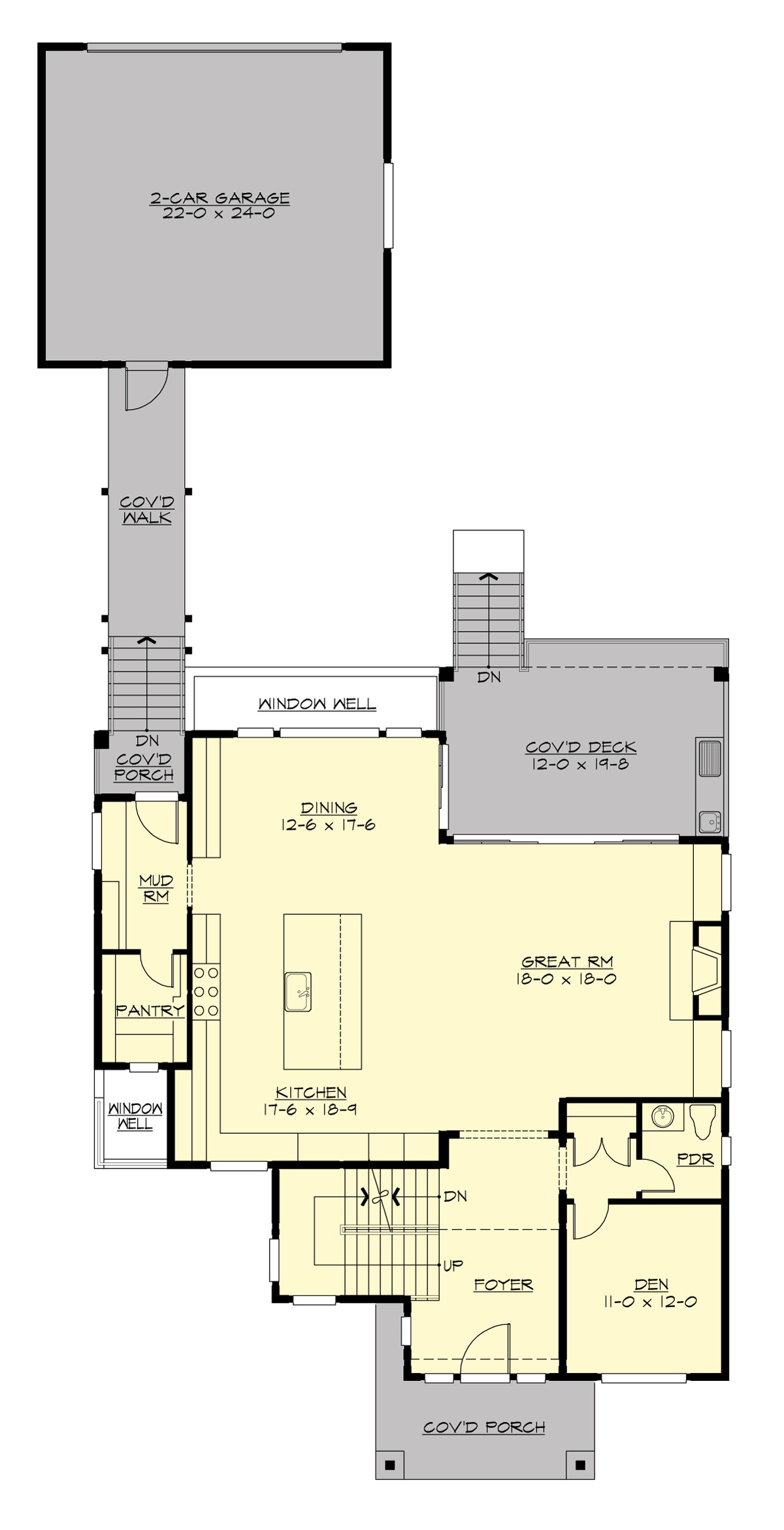
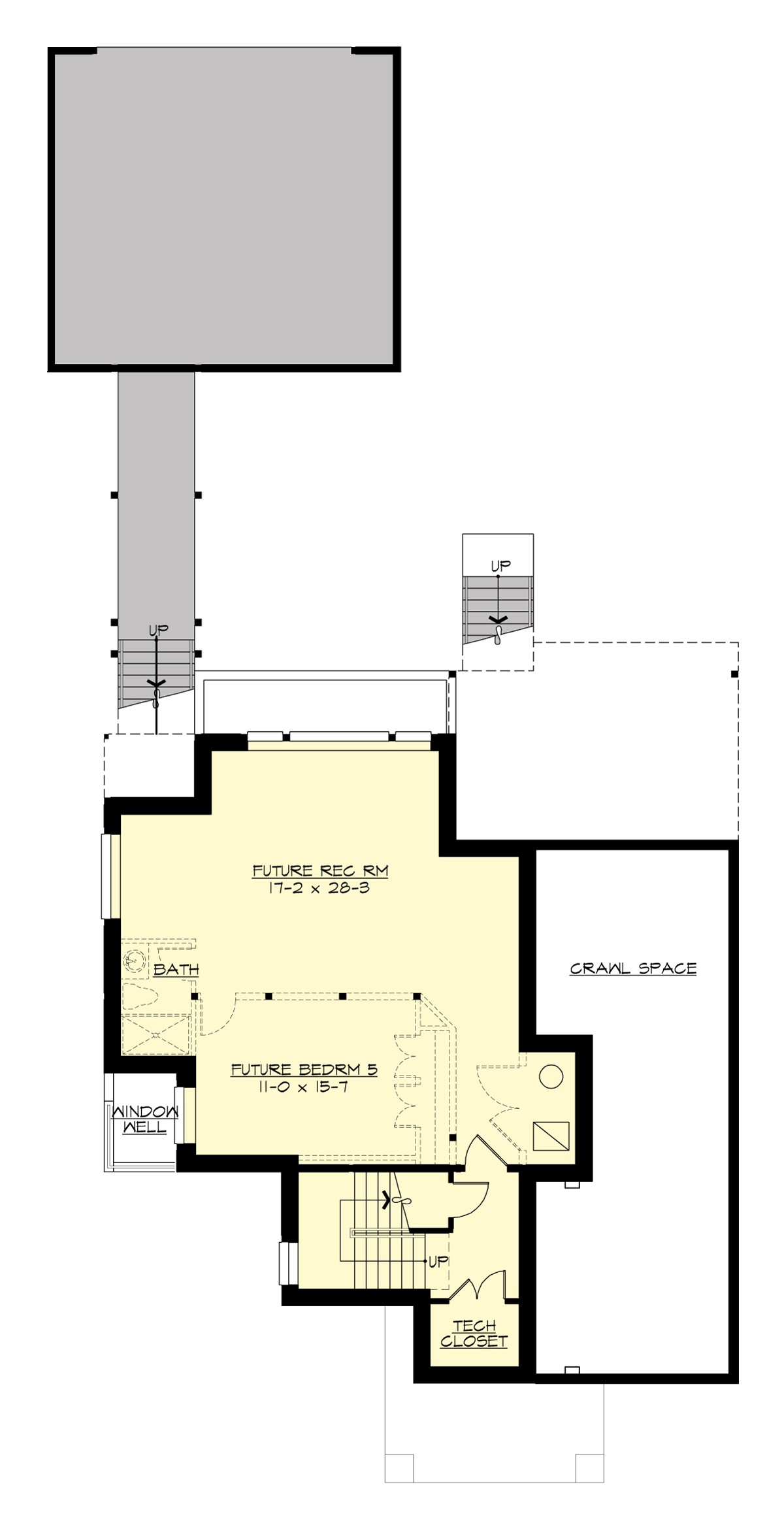
PLAN DETAILS FOR THE BRADBURY - PLAN M3277A2RD-0DB
Area Summary
  • Total Area:3486 Sq. Ft.
  • Main Floor:1611 Sq. Ft.
  • Upper Floor:1666 Sq. Ft.
  • Lower Floor:209 Sq. Ft.
  • Garage Floor:575 Sq. Ft.
General Information
  • Stories:3
  • Width:45'-0"
  • Depth:57'-6"
  • Height:22'-0"
Architectural Style
  • Contemporary
  • Modern
  • Prarie
Number of Rooms
  • Bedrooms:5
  • Full Baths:3
  • Half Baths:1
Garage
  • Garage Size:3
  • Garage Door Location:Rear
  • Garage Type: Detached
Roof Pitches
Wall Heights
  • Main:10'-0"
  • Upper:8'-0"
  • Lower:9'-0"
Foundation Type
  • Daylight Basement
Roof Framing
  • Stick
Floor Load
  • Live (lbs):40 PSF
  • Dead (lbs):10 PSF
Roof Load
  • Live (lbs):25 PSF
  • Dead (lbs):15 PSF
  • Wind:85 MPH
Design Features
  • Bonus Space @ & Lower Floor
  • Den/Office
  • Front and Rear Porch
  • Great Room
  • Laundry Room @ & Upper Floor
  • Master Bedroom @ Upper Floor Rear
  • Contemporary Home Plans
  • Modern Home Plans
  • Prairie Home Plans
  • Narrow Lot House Plans
  • View Lot (Rear) Plans
Please enter the zip code of your building site, then select the Go! button to view pricing information for this house plan.

Recent View

© 2023 Architects Northwest All Rights Reserved Powered By: Visualwebz