Plan Pricing

$0

CAMBRIDGE

M6804A3S-0FB
  • Total Area:6820 Sq. Ft.
  • Garage Area:867 Sq Ft
  • Garage Size:3
  • Stories:3
  • Bedrooms:5
  • Full Baths:5
  • Half Baths:3
  • Width:82'-0"
  • Depth:90'-0"
  • Height:28'-0"
  • Foundation:Basement
PLAN DETAILS FOR THE CAMBRIDGE - PLAN M6804A3S-0FB
Area Summary
  • Total Area:6820 Sq. Ft.
  • Main Floor:3386 Sq. Ft.
  • Upper Floor:3434 Sq. Ft.
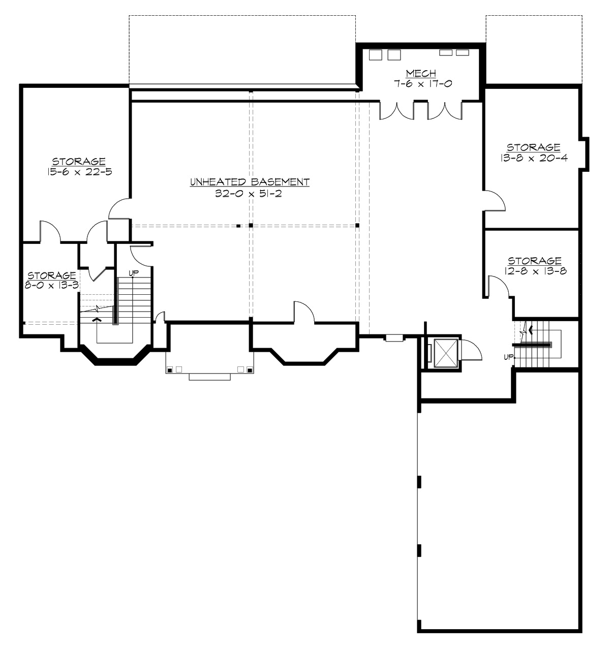
  • Lower Floor:3411 Sq. Ft.
  • Garage Floor:867 Sq. Ft.
General Information
  • Stories:3
  • Width:82'-0"
  • Depth:90'-0"
  • Height:28'-0"
Architectural Style
  • Colonial
  • Hampton
  • Traditional
Number of Rooms
  • Bedrooms:5
  • Full Baths:5
  • Half Baths:3
Garage
  • Garage Size:3
  • Garage Door Location:Side
Roof Pitches
  • Primary:8:12
  • Secondary:6:12
Wall Heights
  • Main:10'-0"
  • Upper:9'-0"
  • Lower:8'-0"
Foundation Type
  • Cellar Basement
Roof Framing
  • Combination
Floor Load
  • Live (lbs):40 PSF
  • Dead (lbs):10 PSF
Roof Load
  • Live (lbs):25 PSF
  • Dead (lbs):15 PSF
  • Wind:85 MPH
Design Features
  • Bonus Space @ Main & Upper Floor
  • Den/Office
  • Front Porch
  • Great Room
  • Laundry Room @ & Upper Floor
  • Master Bedroom @ Upper Floor Rear
  • Colonial House Plans
  • Hampton House Plans
  • Traditional House Plans
  • Luxury Home Designs
  • View Lot (Rear) Plans
  • Wide Lot House Plans
Please enter the zip code of your building site, then select the Go! button to view pricing information for this house plan.

Recent View

Front Rendering

Red Alder

A1295A2S-0
  • Total Area:1295 Sq. Ft.
  • Stories:2
  • Bedrooms:2
  • Full Baths:2
© 2023 Architects Northwest All Rights Reserved Powered By: Visualwebz