Plan Pricing

$0

MONTEVIEW RIDGE

M3970A3F-1DB
  • Total Area:4244 Sq. Ft.
  • Garage Area:785 Sq Ft
  • Garage Size:3
  • Stories:3
  • Bedrooms:4
  • Full Baths:4
  • Half Baths:1
  • Width:91'-0"
  • Depth:50'-0"
  • Height:26'-8"
  • Foundation:Basement
PLAN DETAILS FOR THE MONTEVIEW RIDGE - PLAN M3970A3F-1DB
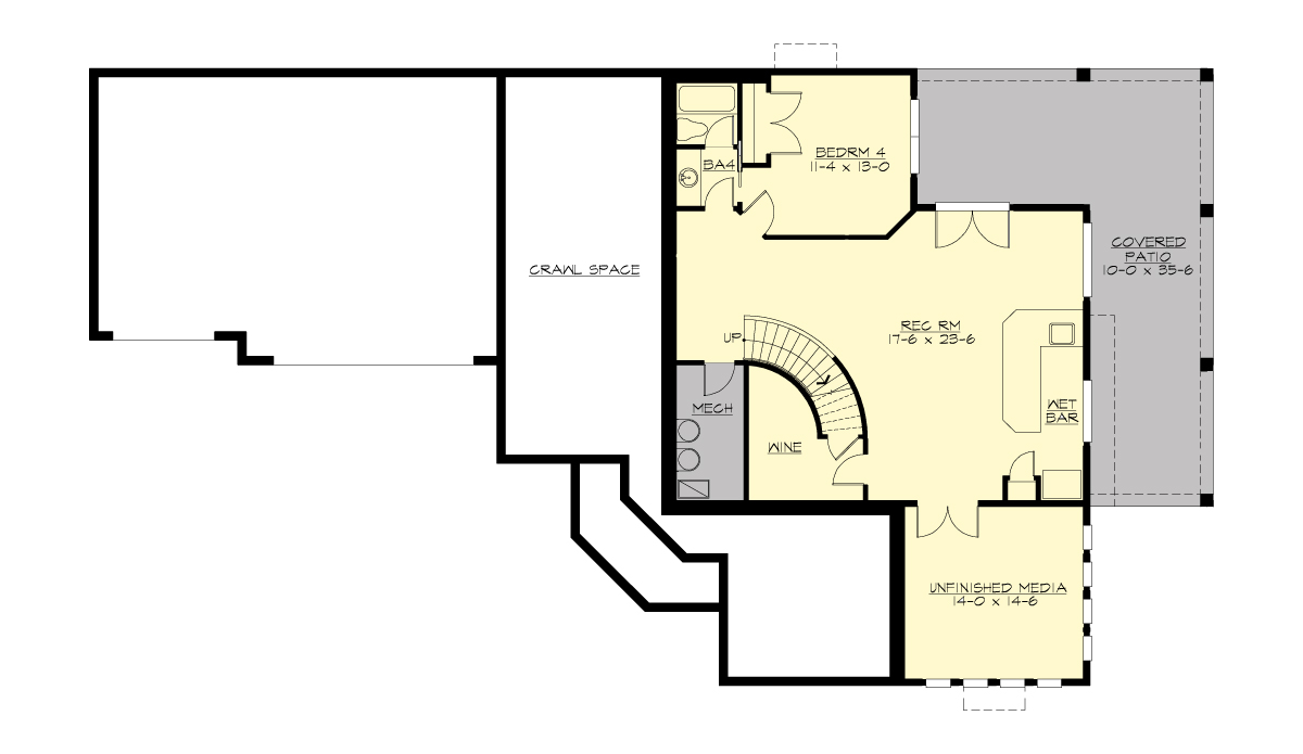
Area Summary
  • Total Area:4244 Sq. Ft.
  • Main Floor:1972 Sq. Ft.
  • Upper Floor:1424 Sq. Ft.
  • Lower Floor:848 Sq. Ft.
  • Garage Floor:785 Sq. Ft.
General Information
  • Stories:3
  • Width:91'-0"
  • Depth:50'-0"
  • Height:26'-8"
Architectural Style
  • Chateau
  • European
  • Traditional
Number of Rooms
  • Bedrooms:4
  • Full Baths:4
  • Half Baths:1
Garage
  • Garage Size:3
  • Garage Door Location:Front
Roof Pitches
  • Primary:5:12
Wall Heights
  • Main:10'-0"
  • Upper:9'-0"
  • Lower:9'-0"
Foundation Type
  • Daylight Basement
Roof Framing
  • Trusses
Floor Load
  • Live (lbs):40 PSF
  • Dead (lbs):10 PSF
Roof Load
  • Live (lbs):25 PSF
  • Dead (lbs):15 PSF
  • Wind:85 MPH
Design Features
  • Bonus Space @ & Lower Floor
  • Den/Office
  • Front and Rear Porch
  • Great Room
  • Laundry Room @ Main Floor
  • Master Bedroom @ Upper Floor Rear
  • Chateau House Plans
  • European House Plans
  • Traditional House Plans
  • View Lot (Rear) Plans
Please enter the zip code of your building site, then select the Go! button to view pricing information for this house plan.

Recent View

© 2023 Architects Northwest All Rights Reserved Powered By: Visualwebz