Plan Pricing

$0

ETHAN RYAN

M2961A2F-0
  • Total Area:2962 Sq. Ft.
  • Garage Area:423 Sq Ft
  • Garage Size:2
  • Stories:2
  • Bedrooms:4
  • Full Baths:3
  • Half Baths:1
  • Width:43'-0"
  • Depth:50'-0"
  • Height:30'-6"
  • Foundation:Crawl Space
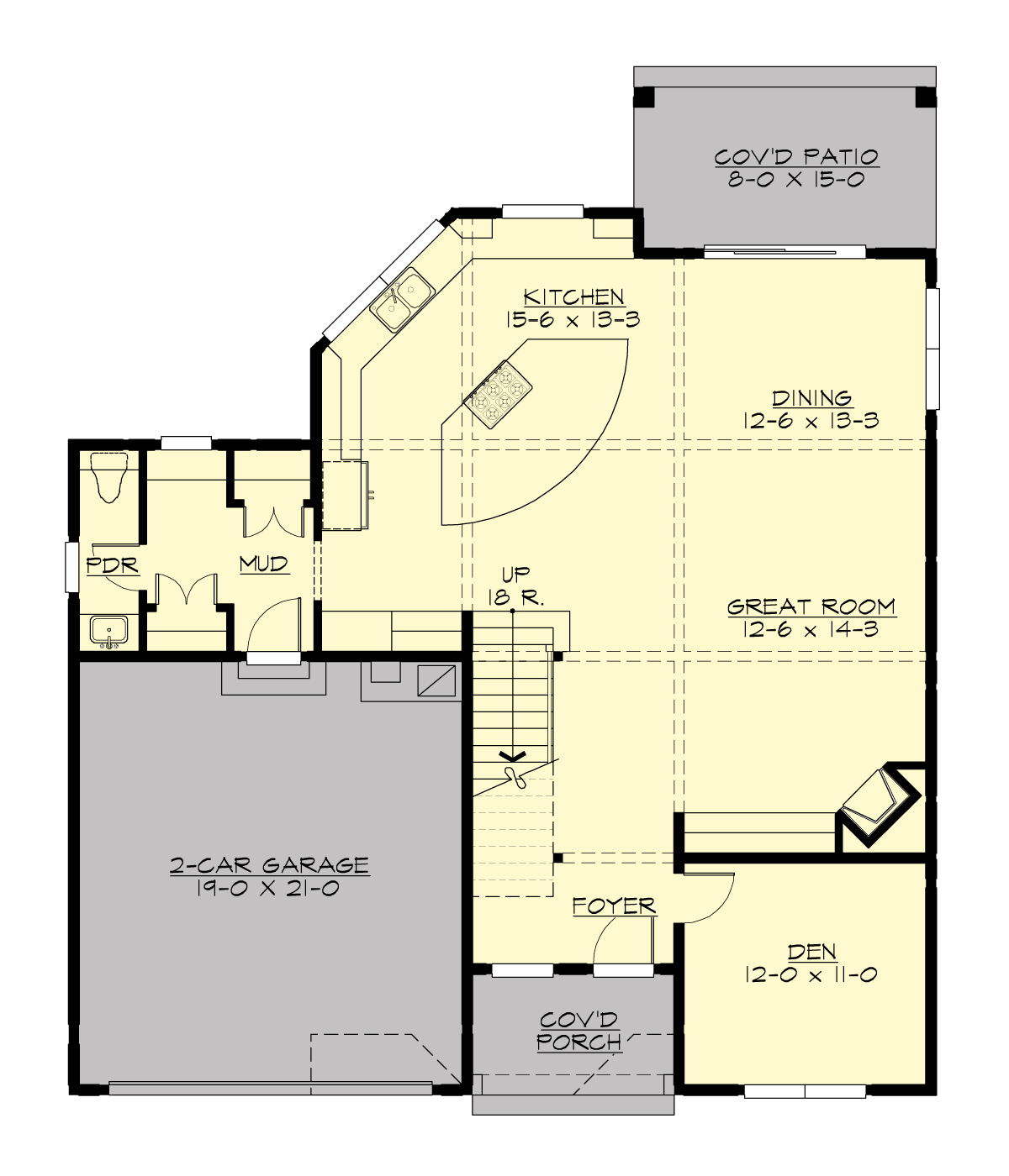
PLAN DETAILS FOR THE ETHAN RYAN - PLAN M2961A2F-0
Area Summary
  • Total Area:2962 Sq. Ft.
  • Main Floor:1219 Sq. Ft.
  • Upper Floor:1743 Sq. Ft.
  • Garage Floor:423 Sq. Ft.
General Information
  • Stories:2
  • Width:43'-0"
  • Depth:50'-0"
  • Height:30'-6"
Architectural Style
  • Hampton
  • Shingle
  • Traditional
Number of Rooms
  • Bedrooms:4
  • Full Baths:3
  • Half Baths:1
Garage
  • Garage Size:2
  • Garage Door Location:Front
Roof Pitches
  • Primary:8:12
  • Secondary:6:12
Wall Heights
  • Main:10'-0"
  • Upper:9'-0"
Foundation Type
  • Crawl Space
Roof Framing
  • Trusses
Floor Load
  • Live (lbs):40 PSF
  • Dead (lbs):10 PSF
Roof Load
  • Live (lbs):25 PSF
  • Dead (lbs):15 PSF
  • Wind:85 MPH
Design Features
  • Bonus Space @ & Upper Floor
  • Den/Office
  • Rear Porch
  • Great Room
  • Laundry Room @ & Upper Floor
  • Master Bedroom @ Upper Floor Rear
  • Hampton House Plans
  • Shingle House Plans
  • Traditional House Plans
  • Narrow Lot House Plans
  • View Lot (Rear) Plans
Front Photo

Ethan

M2961A2F-0DB
  • Total Area:4308 Sq. Ft.
  • Stories:3
  • Bedrooms:4
  • Full Baths:4
Please enter the zip code of your building site, then select the Go! button to view pricing information for this house plan.

Recent View

Front Photo

Leota Meadows

M3445F3F-0
  • Total Area:3715 Sq. Ft.
  • Stories:2
  • Bedrooms:4
  • Full Baths:4
Front Rendering

Crows Ridge

M3440A2F-10
  • Total Area:3635 Sq. Ft.
  • Stories:3
  • Bedrooms:5
  • Full Baths:3
Front Photo

Greenhurst

M2870A2F1S-0
  • Total Area:2870 Sq. Ft.
  • Stories:2
  • Bedrooms:3
  • Full Baths:2
© 2023 Architects Northwest All Rights Reserved Powered By: Visualwebz