Plan Pricing

$0

ELLYSEND

M3995A0-0
  • Total Area:3995 Sq. Ft.
  • Garage Area:0 Sq Ft
  • Garage Size:No Garage
  • Stories:2
  • Bedrooms:3
  • Full Baths:4
  • Width:90'-0"
  • Depth:52'-0"
  • Height:33'-0"
  • Foundation:Crawl Space
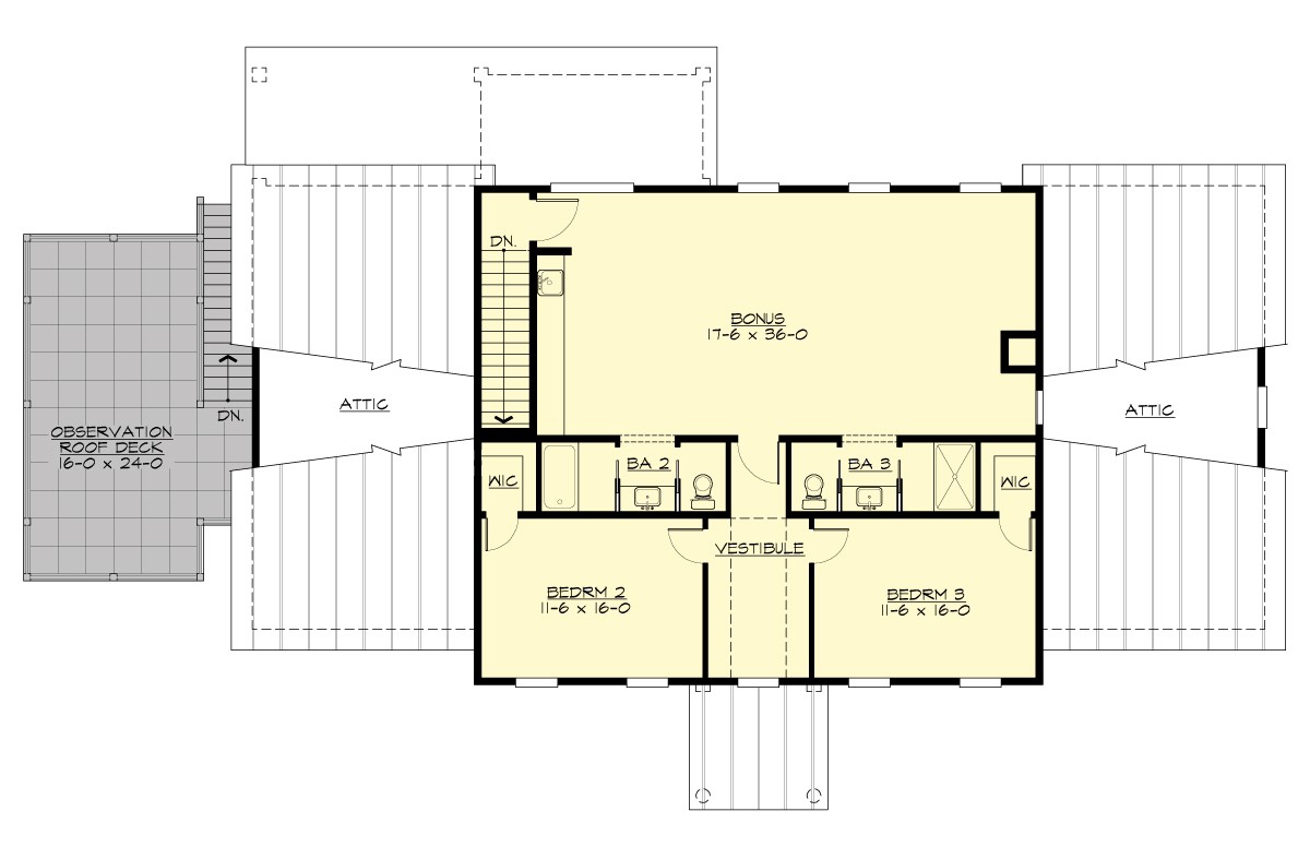
PLAN DETAILS FOR THE ELLYSEND - PLAN M3995A0-0
Area Summary
  • Total Area:3995 Sq. Ft.
  • Main Floor:2584 Sq. Ft.
  • Upper Floor:1411 Sq. Ft.
General Information
  • Stories:2
  • Width:90'-0"
  • Depth:52'-0"
  • Height:33'-0"
Architectural Style
  • Colonial
  • Country
  • Farmhouse
Number of Rooms
  • Bedrooms:3
  • Full Baths:4
Garage
  • Garage Size:No Garage
Roof Pitches
  • Primary:8:12
  • Secondary:3:12
Wall Heights
  • Main:9'-0"
  • Upper:8'-0"
Foundation Type
  • Crawl Space
Roof Framing
  • Combination
Floor Load
  • Live (lbs):40 PSF
  • Dead (lbs):10 PSF
Roof Load
  • Live (lbs):25 PSF
  • Dead (lbs):15 PSF
  • Wind:85 MPH
Design Features
  • Bonus Space @ & Upper Floor
  • Den/Office
  • Rear Porch
  • Great Room
  • Laundry Room @ Main Floor
  • Master Bedroom @ Main Floor Front
  • Colonial House Plans
  • Country House Plans
  • Farmhouse Home Plans
  • View Lot (Rear) Plans
  • Wide Lot House Plans
Please enter the zip code of your building site, then select the Go! button to view pricing information for this house plan.

Recent View

Front Exterior

Wisteria

M3455A3FT-0
  • Total Area:3480 Sq. Ft.
  • Stories:2
  • Bedrooms:4
  • Full Baths:3
© 2023 Architects Northwest All Rights Reserved Powered By: Visualwebz