Plan Pricing

$0

HOLLYMONT

M4204A3FT-0
  • Total Area:4204 Sq. Ft.
  • Garage Area:684 Sq Ft
  • Garage Size:3
  • Stories:3
  • Bedrooms:4
  • Full Baths:5
  • Width:45'-0"
  • Depth:74'-0"
  • Height:30'-0"
  • Foundation:Crawl Space
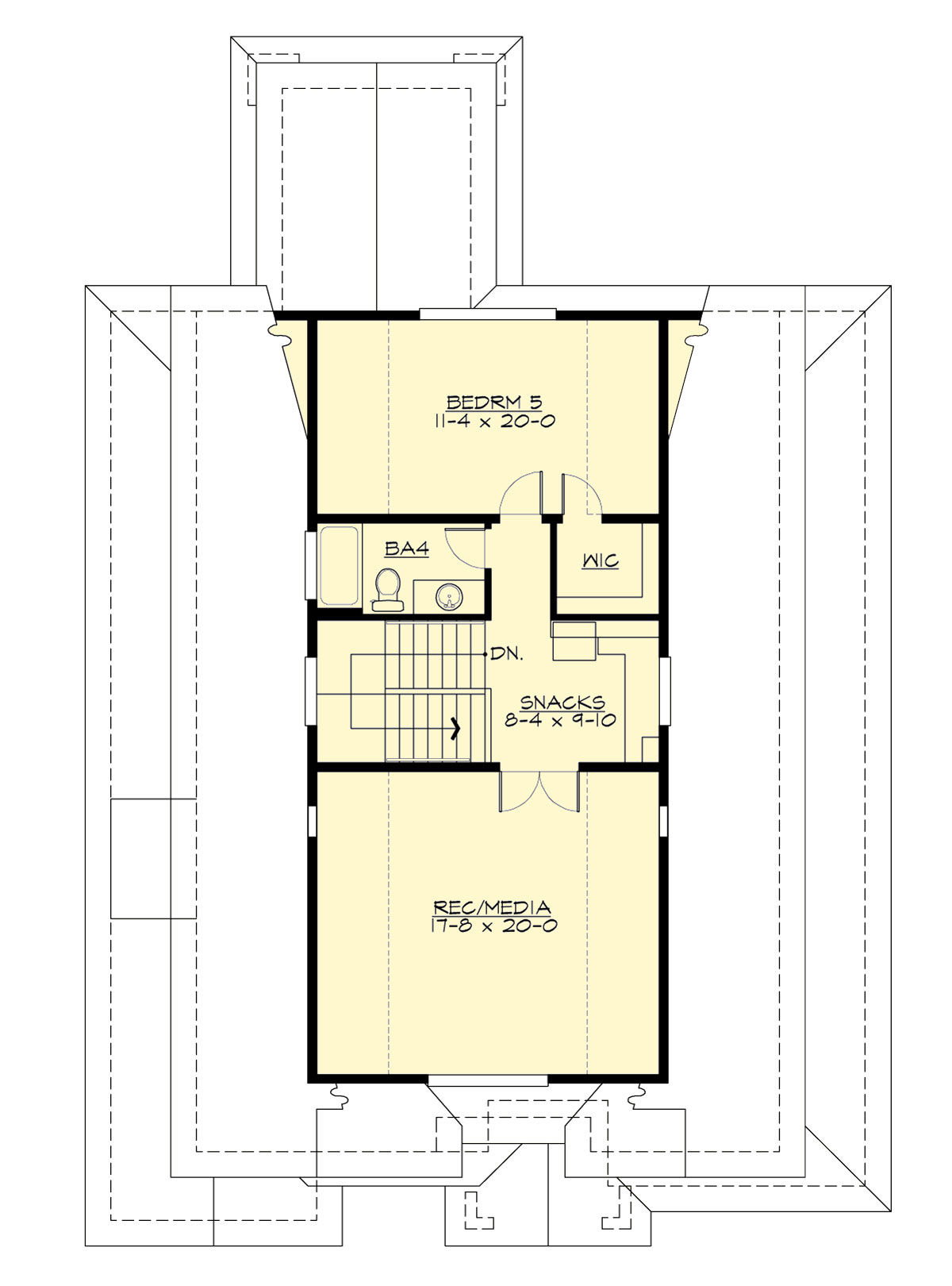
PLAN DETAILS FOR THE HOLLYMONT - PLAN M4204A3FT-0
Area Summary
  • Total Area:4204 Sq. Ft.
  • Main Floor:1939 Sq. Ft.
  • Upper Floor:2265 Sq. Ft.
  • Garage Floor:684 Sq. Ft.
General Information
  • Stories:3
  • Width:45'-0"
  • Depth:74'-0"
  • Height:30'-0"
Architectural Style
  • Craftsman
  • Northwest
  • Shingle
Number of Rooms
  • Bedrooms:4
  • Full Baths:5
Garage
  • Garage Size:3
  • Garage Door Location:Front
  • Garage Type: Tandem
Roof Pitches
  • Primary:6:12
  • Secondary:4:12
Wall Heights
  • Main:10'-0"
  • Upper:9'-0"
  • Third:9'-0"
Foundation Type
  • Crawl Space
Roof Framing
  • Trusses
Floor Load
  • Live (lbs):40 PSF
  • Dead (lbs):10 PSF
Roof Load
  • Live (lbs):25 PSF
  • Dead (lbs):15 PSF
  • Wind:85 MPH
Design Features
  • Bonus Space @ & Upper Floor
  • Den/Office
  • Front and Rear Porch
  • Great Room
  • Laundry Room @ & Upper Floor
  • Master Bedroom @ Upper Floor Rear
  • Craftsman House Plans
  • Northwest Floor Plans
  • Shingle House Plans
  • Narrow Lot House Plans
  • View Lot (Rear) Plans
Please enter the zip code of your building site, then select the Go! button to view pricing information for this house plan.

Recent View

© 2023 Architects Northwest All Rights Reserved Powered By: Visualwebz