Plan Pricing

$0

MOORELANDS

M6604B4S-1R
  • Total Area:6692 Sq. Ft.
  • Garage Area:988 Sq Ft
  • Garage Size:4
  • Stories:2
  • Bedrooms:5
  • Full Baths:4
  • Half Baths:2
  • Width:76'-0"
  • Depth:104'-0"
  • Height:33'-0"
  • Foundation:Crawl Space
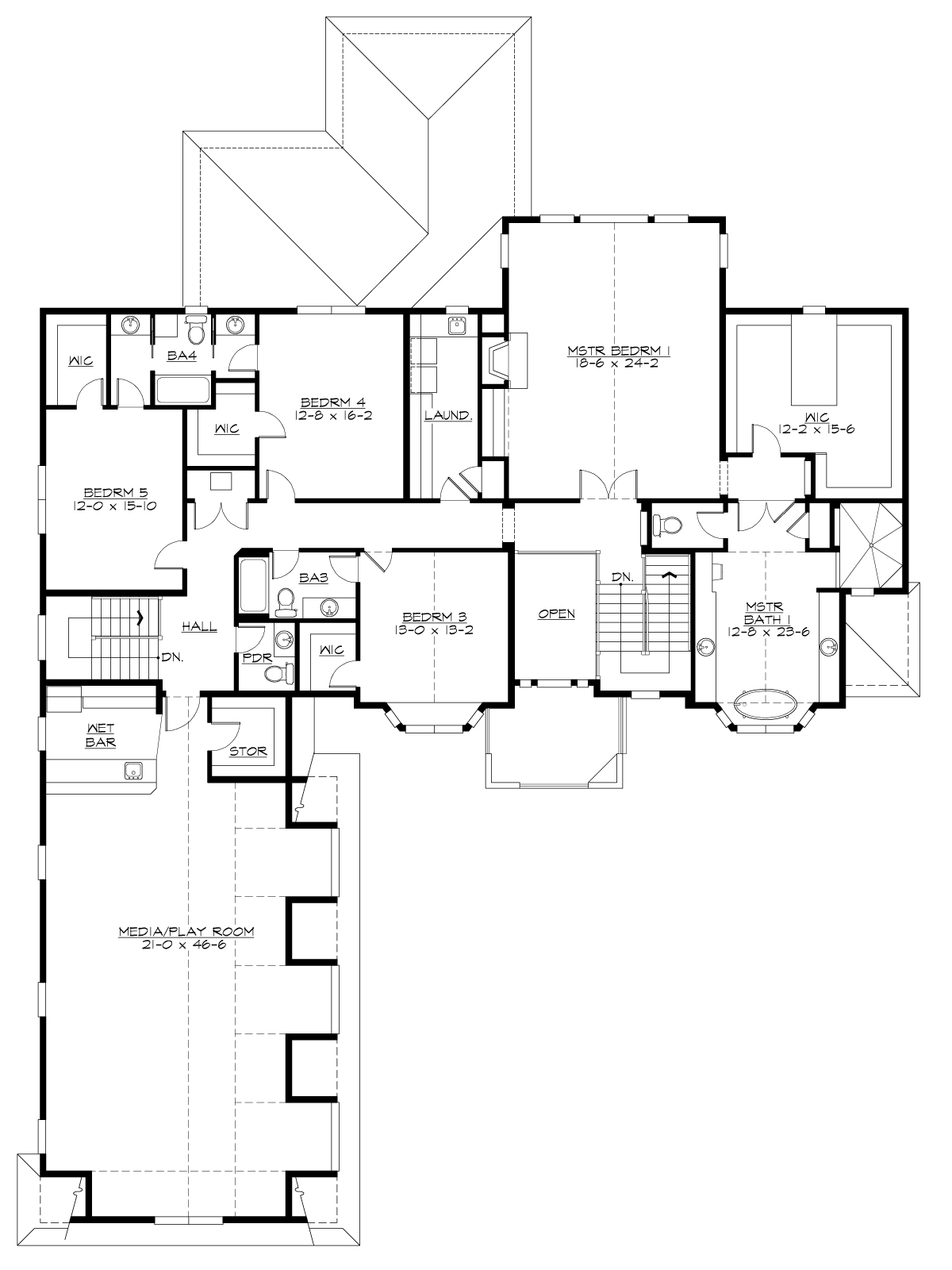
PLAN DETAILS FOR THE MOORELANDS - PLAN M6604B4S-1R
Area Summary
  • Total Area:6692 Sq. Ft.
  • Main Floor:2966 Sq. Ft.
  • Upper Floor:3726 Sq. Ft.
  • Garage Floor:988 Sq. Ft.
General Information
  • Stories:2
  • Width:76'-0"
  • Depth:104'-0"
  • Height:33'-0"
Architectural Style
  • Craftsman
  • Northwest
  • Shingle
Number of Rooms
  • Bedrooms:5
  • Full Baths:4
  • Half Baths:2
Garage
  • Garage Size:4
  • Garage Door Location:Side
Roof Pitches
  • Primary:10:12
  • Secondary:8:12
Wall Heights
  • Main:10'-0"
  • Upper:9'-0"
Foundation Type
  • Crawl Space
Roof Framing
  • Combination
Floor Load
  • Live (lbs):40 PSF
  • Dead (lbs):10 PSF
Roof Load
  • Live (lbs):25 PSF
  • Dead (lbs):15 PSF
  • Wind:85 MPH
Design Features
  • Bonus Space @ & Upper Floor
  • Den/Office
  • Front and Rear Porch
  • Great Room
  • Laundry Room @ & Upper Floor
  • Master Bedroom @ Upper Floor Rear
  • Craftsman House Plans
  • Northwest Floor Plans
  • Shingle House Plans
  • View Lot (Rear) Plans
  • Wide Lot House Plans
Please enter the zip code of your building site, then select the Go! button to view pricing information for this house plan.

Recent View

© 2023 Architects Northwest All Rights Reserved Powered By: Visualwebz