Plan Pricing

$0

BRANSONVILLE

R2810B2S-0
  • Total Area:2810 Sq. Ft.
  • Garage Area:675 Sq Ft
  • Garage Size:2
  • Stories:2
  • Bedrooms:3
  • Full Baths:2
  • Half Baths:1
  • Width:62'-0"
  • Depth:88'-0"
  • Height:21'-6"
  • Foundation:Crawl Space
PLAN DETAILS FOR THE BRANSONVILLE - PLAN R2810B2S-0
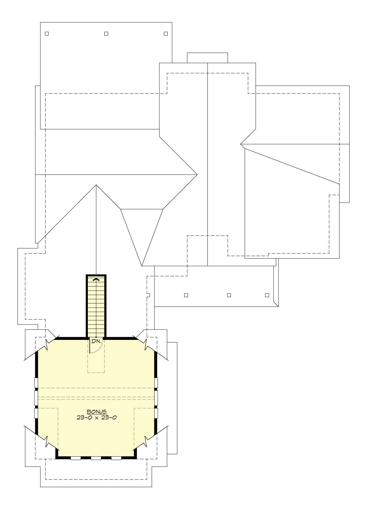
Area Summary
  • Total Area:2810 Sq. Ft.
  • Main Floor:2235 Sq. Ft.
  • Upper Floor:575 Sq. Ft.
  • Garage Floor:675 Sq. Ft.
General Information
  • Stories:2
  • Width:62'-0"
  • Depth:88'-0"
  • Height:21'-6"
Architectural Style
  • Country
  • Farmhouse
  • Modern
Number of Rooms
  • Bedrooms:3
  • Full Baths:2
  • Half Baths:1
Garage
  • Garage Size:2
  • Garage Door Location:Side
Roof Pitches
  • Primary:8:12
  • Secondary:3:12
Wall Heights
  • Main:9'-0"
  • Upper:8'-0"
Foundation Type
  • Crawl Space
Roof Framing
  • Combination
Floor Load
  • Live (lbs):40 PSF
  • Dead (lbs):10 PSF
Roof Load
  • Live (lbs):25 PSF
  • Dead (lbs):15 PSF
  • Wind:85 MPH
Design Features
  • Bonus Space @ & Upper Floor
  • Front and Rear Porch
  • Great Room
  • Laundry Room @ Main Floor
  • Master Bedroom @ Main Floor Rear
  • Country House Plans
  • Farmhouse Home Plans
  • Modern Home Plans
  • Narrow Lot House Plans
  • View Lot (Rear) Plans
Front Photo

Carbonado

R2070A3S-0
  • Total Area:2070 Sq. Ft.
  • Stories:1
  • Bedrooms:3
  • Full Baths:2
Front Photo

Branson

R2070B3S-0
  • Total Area:2210 Sq. Ft.
  • Stories:1
  • Bedrooms:3
  • Full Baths:2
Front Rendering

Bransonvale

R2810B3S-0
  • Total Area:2810 Sq. Ft.
  • Stories:1
  • Bedrooms:3
  • Full Baths:2
Please enter the zip code of your building site, then select the Go! button to view pricing information for this house plan.

Recent View

Front Rendering

Bransonvale

R2810B3S-0
  • Total Area:2810 Sq. Ft.
  • Stories:1
  • Bedrooms:3
  • Full Baths:2
Front Rendering

Park City

R2665A3F-0DB
  • Total Area:2665 Sq. Ft.
  • Stories:2
  • Bedrooms:4
  • Full Baths:2
Front Rendering

Myrtle Creek

R2655B3F-0DB
  • Total Area:2705 Sq. Ft.
  • Stories:2
  • Bedrooms:3
  • Full Baths:2
© 2023 Architects Northwest All Rights Reserved Powered By: Visualwebz