Plan Pricing

$0

POLARIS

R2393A3F-0
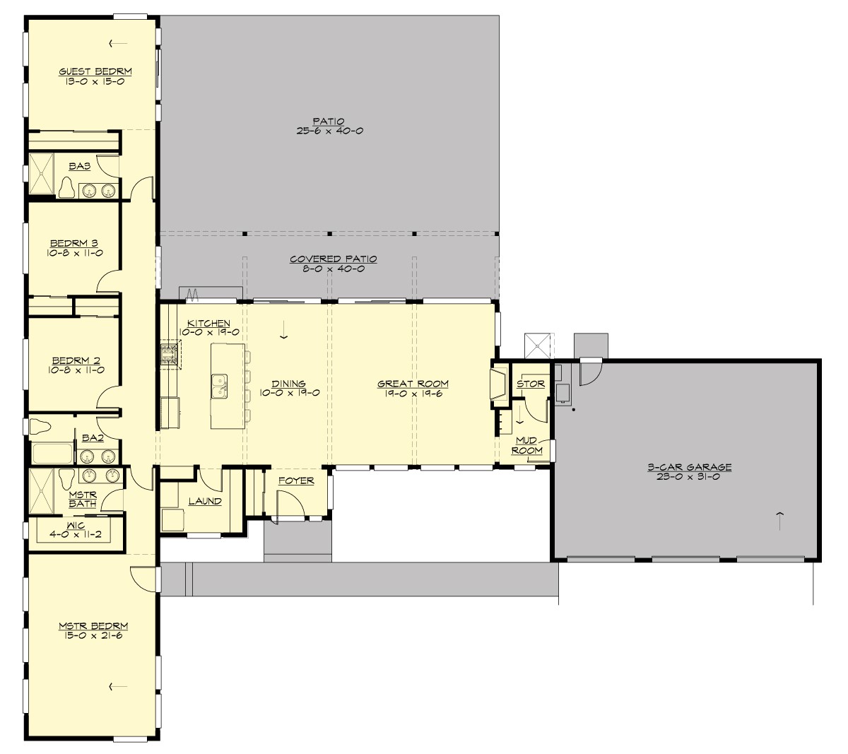
  • Total Area:2394 Sq. Ft.
  • Garage Area:762 Sq Ft
  • Garage Size:3
  • Stories:1
  • Bedrooms:4
  • Full Baths:3
  • Width:94'-0"
  • Depth:85'-6"
  • Height:18'-1"
  • Foundation:Crawl Space
PLAN DETAILS FOR THE POLARIS - PLAN R2393A3F-0
Area Summary
  • Total Area:2394 Sq. Ft.
  • Main Floor:2394 Sq. Ft.
  • Garage Floor:762 Sq. Ft.
General Information
  • Stories:1
  • Width:94'-0"
  • Depth:85'-6"
  • Height:18'-1"
Architectural Style
  • Contemporary
  • Modern
  • Prarie
Number of Rooms
  • Bedrooms:4
  • Full Baths:3
Garage
  • Garage Size:3
  • Garage Door Location:Front
Roof Pitches
  • Primary:3:12
Wall Heights
  • Main:10'-0"
Foundation Type
  • Crawl Space
Roof Framing
  • Trusses
Floor Load
  • Live (lbs):40 PSF
  • Dead (lbs):10 PSF
Roof Load
  • Live (lbs):25 PSF
  • Dead (lbs):15 PSF
  • Wind:85 MPH
Design Features
  • Rear Porch
  • Great Room
  • Laundry Room @ Main Floor
  • Master Bedroom @ Main Floor Front
  • Contemporary Home Plans
  • Modern Home Plans
  • Prairie Home Plans
  • Wide Lot House Plans
Please enter the zip code of your building site, then select the Go! button to view pricing information for this house plan.

Recent View

Front Photo

Lacewing

M4286A4FTU-0DB
  • Total Area:4256 Sq. Ft.
  • Stories:3
  • Bedrooms:4
  • Full Baths:3
© 2023 Architects Northwest All Rights Reserved Powered By: Visualwebz