Plan Pricing

$0

ADA

A1235A1F-0
  • Total Area:1236 Sq. Ft.
  • Garage Area:192 Sq Ft
  • Garage Size:1
  • Stories:2
  • Bedrooms:2
  • Full Baths:2
  • Width:32'-0"
  • Depth:40'-0"
  • Height:22'-0"
  • Foundation:Crawl Space
PLAN DETAILS FOR THE ADA - PLAN A1235A1F-0
Area Summary
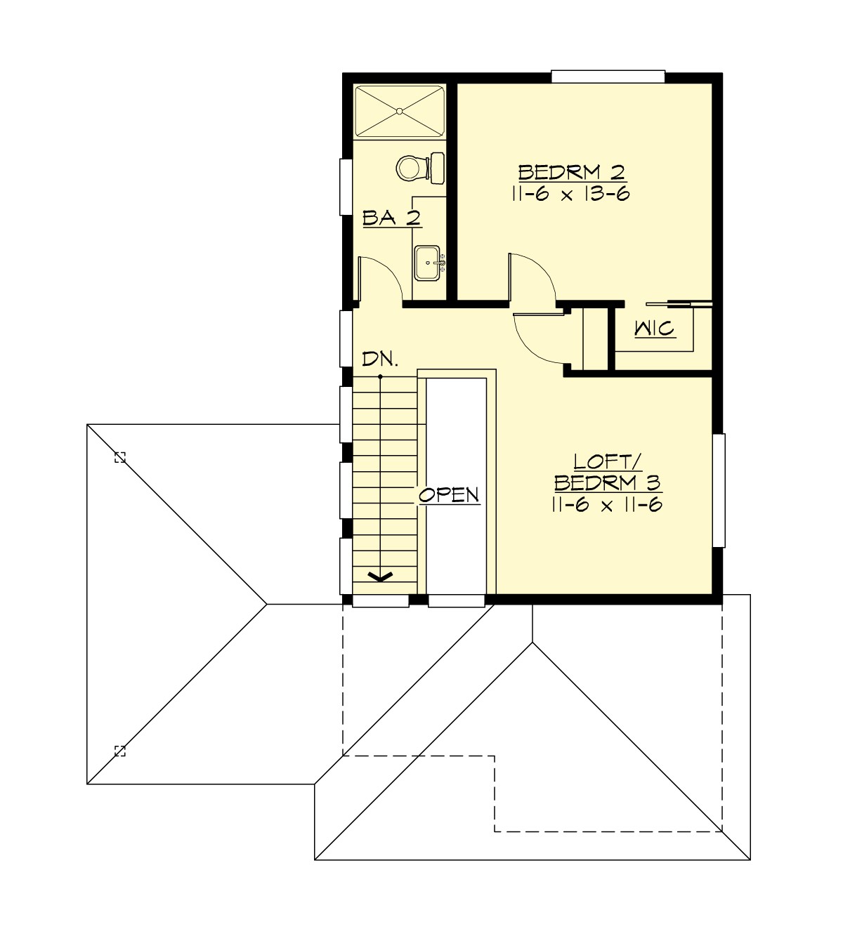
  • Total Area:1236 Sq. Ft.
  • Main Floor:768 Sq. Ft.
  • Upper Floor:468 Sq. Ft.
  • Garage Floor:192 Sq. Ft.
General Information
  • Stories:2
  • Width:32'-0"
  • Depth:40'-0"
  • Height:22'-0"
Architectural Style
  • Contemporary
  • Modern
  • Prarie
Number of Rooms
  • Bedrooms:2
  • Full Baths:2
Garage
  • Garage Size:1
  • Garage Door Location:Front
Roof Pitches
  • Primary:3:12
Wall Heights
  • Main:9'-0"
  • Upper:9'-0"
Foundation Type
  • Crawl Space
Roof Framing
  • Trusses
Floor Load
  • Live (lbs):40 PSF
  • Dead (lbs):10 PSF
Roof Load
  • Live (lbs):25 PSF
  • Dead (lbs):15 PSF
  • Wind:85 MPH
Design Features
  • Bonus Space @ & Upper Floor
  • Great Room
  • Laundry Room @ Main Floor
  • Master Bedroom @ Main Floor Rear
  • Contemporary Home Plans
  • Modern Home Plans
  • Prairie Home Plans
  • Affordable Home Designs
  • Narrow Lot House Plans
  • Small House Plans
Please enter the zip code of your building site, then select the Go! button to view pricing information for this house plan.

Recent View

Front Photo

Catania

M2204A1S-0
  • Total Area:2204 Sq. Ft.
  • Stories:2
  • Bedrooms:2
  • Full Baths:2
© 2023 Architects Northwest All Rights Reserved Powered By: Visualwebz