Plan Pricing

$0

PACIFIC COVE HEIGHTS

R2820A3F-0DB
  • Total Area:4445 Sq. Ft.
  • Garage Area:0 Sq Ft
  • Garage Size:3
  • Stories:2
  • Bedrooms:5
  • Full Baths:3
  • Half Baths:2
  • Width:84'-0"
  • Depth:67'-0"
  • Height:24'-6"
  • Foundation:Basement
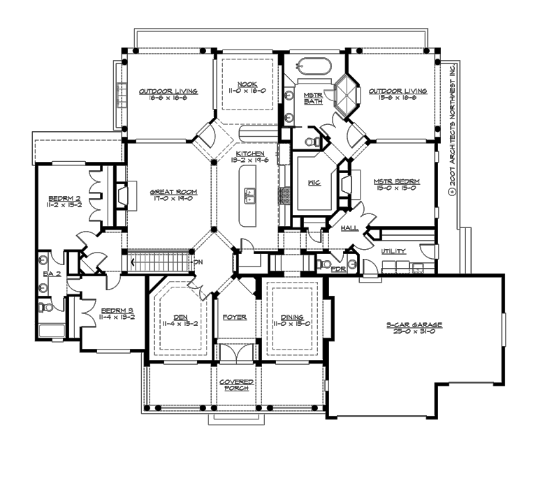
PLAN DETAILS FOR THE PACIFIC COVE HEIGHTS - PLAN R2820A3F-0DB
Area Summary
  • Total Area:4445 Sq. Ft.
  • Main Floor:2770 Sq. Ft.
  • Lower Floor:1675 Sq. Ft.
General Information
  • Stories:2
  • Width:84'-0"
  • Depth:67'-0"
  • Height:24'-6"
Architectural Style
  • Farmhouse
  • Hampton
  • Shingle
Number of Rooms
  • Bedrooms:5
  • Full Baths:3
  • Half Baths:2
Garage
  • Garage Size:3
  • Garage Door Location:Front
Roof Pitches
  • Primary:8:12
  • Secondary:6:12
Wall Heights
  • Main:10'-0"
  • Lower:10'-0"
Foundation Type
  • Daylight Basement
Roof Framing
  • Trusses
Floor Load
  • Live (lbs):40 PSF
  • Dead (lbs):10 PSF
Roof Load
  • Live (lbs):25 PSF
  • Dead (lbs):15 PSF
  • Wind:85 MPH
Design Features
  • Green Plans
  • Bonus Space @ & Lower Floor
  • Den/Office
  • Front and Rear Porch
  • Great Room
  • Laundry Room @ Main & Lower Floor
  • Master Bedroom @ Main Floor Rear
  • Farmhouse Home Plans
  • Hampton House Plans
  • Shingle House Plans
  • Wide Lot House Plans
Front Rendering

Pacific Cove

R2820A3F-0
  • Total Area:2820 Sq. Ft.
  • Stories:1
  • Bedrooms:3
  • Full Baths:2
Front Rendering

Pacificgrove

R2820A3S-0
  • Total Area:2820 Sq. Ft.
  • Stories:1
  • Bedrooms:3
  • Full Baths:2
Front Rendering

Pacificgrove Heights

R2820A3S-0DB
  • Total Area:4445 Sq. Ft.
  • Stories:2
  • Bedrooms:5
  • Full Baths:3
Front Rendering

Palladian Heights

R3500A3F-0
  • Total Area:3500 Sq. Ft.
  • Stories:1
  • Bedrooms:4
  • Full Baths:3
Front Exterior

Palladian

R3500A3S-0
  • Total Area:3500 Sq. Ft.
  • Stories:1
  • Bedrooms:4
  • Full Baths:3
Front Rendering

Palladian Court

R4195A3F-0
  • Total Area:4195 Sq. Ft.
  • Stories:2
  • Bedrooms:4
  • Full Baths:3
Please enter the zip code of your building site, then select the Go! button to view pricing information for this house plan.

Recent View

Front Rendering

Liliedale

R6075A5ST-0DB
  • Total Area:6075 Sq. Ft.
  • Stories:2
  • Bedrooms:4
  • Full Baths:5
Front Rendering

Carbonado Grove

R2070A3S-5DB
  • Total Area:3365 Sq. Ft.
  • Stories:2
  • Bedrooms:4
  • Full Baths:3
© 2023 Architects Northwest All Rights Reserved Powered By: Visualwebz