Plan Pricing

$0

SIENNA

M2416A2F-0DB
  • Total Area:2490 Sq. Ft.
  • Garage Area:392 Sq Ft
  • Garage Size:2
  • Stories:3
  • Bedrooms:3
  • Full Baths:4
  • Half Baths:1
  • Width:32'-0"
  • Depth:57'-6"
  • Height:28'-6"
  • Foundation:Basement
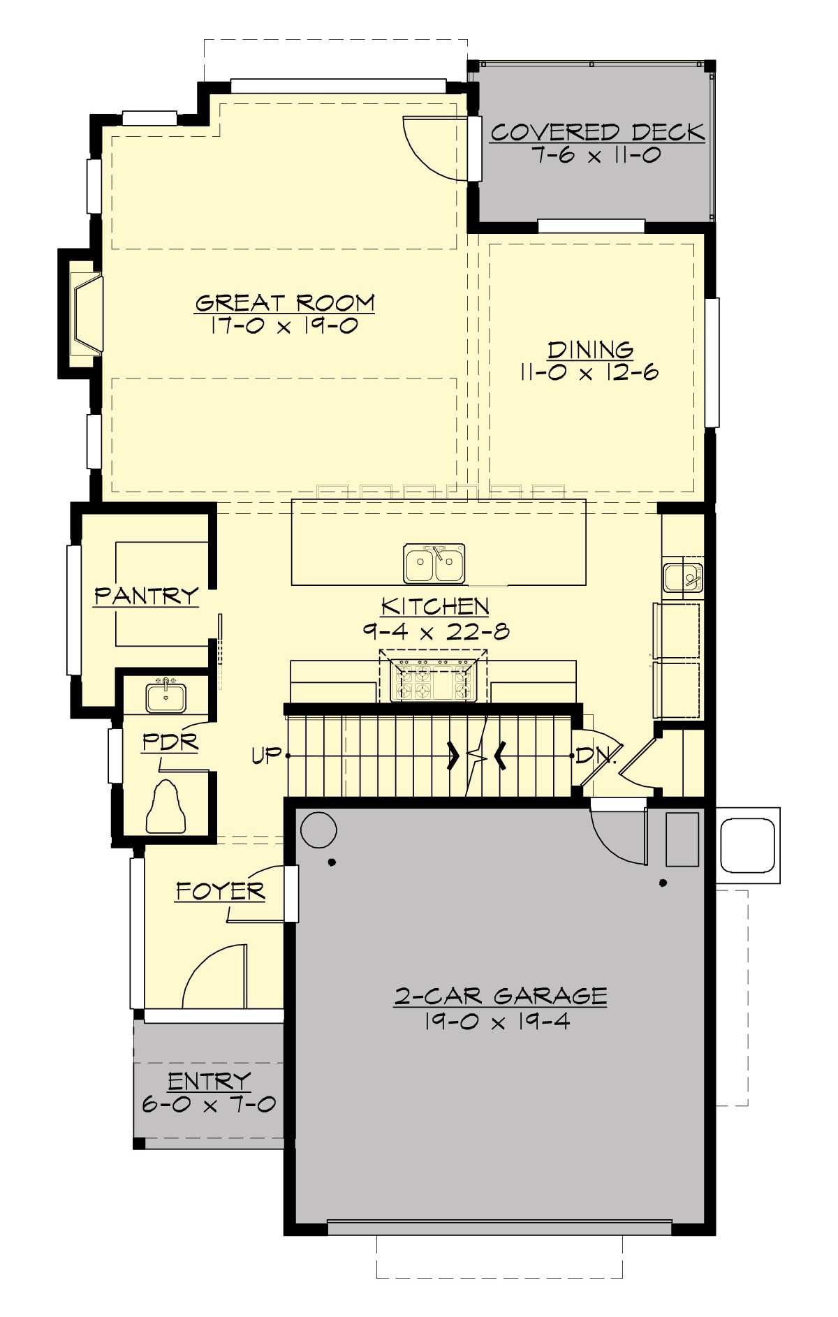
PLAN DETAILS FOR THE SIENNA - PLAN M2416A2F-0DB
Area Summary
  • Total Area:2490 Sq. Ft.
  • Main Floor:978 Sq. Ft.
  • Upper Floor:1438 Sq. Ft.
  • Lower Floor:74 Sq. Ft.
  • Garage Floor:392 Sq. Ft.
General Information
  • Stories:3
  • Width:32'-0"
  • Depth:57'-6"
  • Height:28'-6"
Architectural Style
  • Contemporary
  • Modern
  • Shotgun
Number of Rooms
  • Bedrooms:3
  • Full Baths:4
  • Half Baths:1
Garage
  • Garage Size:2
  • Garage Door Location:Front
Roof Pitches
  • Primary:7:12
Wall Heights
  • Main:10'-0"
  • Upper:8'-0"
  • Lower:10'-0"
Foundation Type
  • Daylight Basement
Roof Framing
  • Trusses
Floor Load
  • Live (lbs):40 PSF
  • Dead (lbs):10 PSF
Roof Load
  • Live (lbs):25 PSF
  • Dead (lbs):15 PSF
  • Wind:85 MPH
Design Features
  • New Plans
  • Bonus Space @ & Lower Floor
  • Den/Office
  • Front and Rear Porch
  • Great Room
  • Laundry Room @ & Upper Floor
  • Master Bedroom @ Upper Floor Rear
  • Contemporary Home Plans
  • Modern Home Plans
  • Shotgun Floor Plans
  • Narrow Lot House Plans
  • View Lot (Rear) Plans
Please enter the zip code of your building site, then select the Go! button to view pricing information for this house plan.

Recent View

Front Rendering

Cedarmill

A2061A0-0
  • Total Area:2061 Sq. Ft.
  • Stories:2
  • Bedrooms:3
  • Full Baths:2
Front Photo

Austin

M3289A3F-0
  • Total Area:3498 Sq. Ft.
  • Stories:2
  • Bedrooms:5
  • Full Baths:4
Front Photo

Saginaw

M3040A3F-0
  • Total Area:3040 Sq. Ft.
  • Stories:2
  • Bedrooms:4
  • Full Baths:2
Front Rendering

Lodestar

M1735D1F-0
  • Total Area:1708 Sq. Ft.
  • Stories:2
  • Bedrooms:3
  • Full Baths:2
© 2023 Architects Northwest All Rights Reserved Powered By: Visualwebz