Plan Pricing

$0

LITTLEBROOK

M1601A2F-0R
  • Total Area:1600 Sq. Ft.
  • Garage Area:410 Sq Ft
  • Garage Size:2
  • Stories:2
  • Bedrooms:3
  • Full Baths:2
  • Half Baths:1
  • Width:32'-6"
  • Depth:35'-0"
  • Height:25'-3"
  • Foundation:Crawl Space
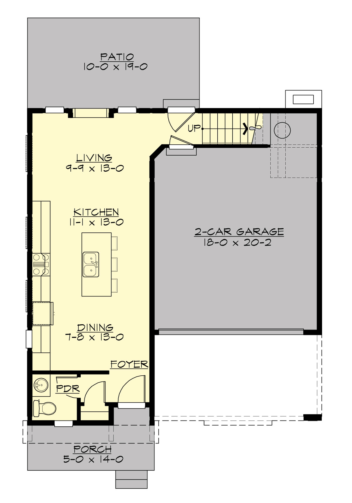
PLAN DETAILS FOR THE LITTLEBROOK - PLAN M1601A2F-0R
Area Summary
  • Total Area:1600 Sq. Ft.
  • Main Floor:535 Sq. Ft.
  • Upper Floor:1065 Sq. Ft.
  • Garage Floor:410 Sq. Ft.
General Information
  • Stories:2
  • Width:32'-6"
  • Depth:35'-0"
  • Height:25'-3"
Architectural Style
  • Contemporary
  • Modern
  • Prarie
Number of Rooms
  • Bedrooms:3
  • Full Baths:2
  • Half Baths:1
Garage
  • Garage Size:2
  • Garage Door Location:Front
Roof Pitches
  • Primary:8:12
  • Secondary:4:12
Wall Heights
  • Main:9'-0"
  • Upper:9'-0"
Foundation Type
  • Crawl Space
Roof Framing
  • Trusses
Floor Load
  • Live (lbs):40 PSF
  • Dead (lbs):10 PSF
Roof Load
  • Live (lbs):25 PSF
  • Dead (lbs):15 PSF
  • Wind:85 MPH
Design Features
  • Den/Office
  • Front Porch
  • Great Room
  • Laundry Room @ & Upper Floor
  • Master Bedroom @ Upper Floor Front
  • Contemporary Home Plans
  • Modern Home Plans
  • Prairie Home Plans
  • Narrow Lot House Plans
Please enter the zip code of your building site, then select the Go! button to view pricing information for this house plan.

Recent View

Front Rendering

Bainbridge Crest

M4300A3ST1F-1DB
  • Total Area:5810 Sq. Ft.
  • Stories:3
  • Bedrooms:4
  • Full Baths:4
© 2023 Architects Northwest All Rights Reserved Powered By: Visualwebz