Plan Pricing

$0

LODESTAR

M1735D1F-0
  • Total Area:1708 Sq. Ft.
  • Garage Area:224 Sq Ft
  • Garage Size:1
  • Stories:2
  • Bedrooms:3
  • Full Baths:2
  • Half Baths:1
  • Width:22'-0"
  • Depth:54'-6"
  • Height:22'-0"
  • Foundation:Crawl Space
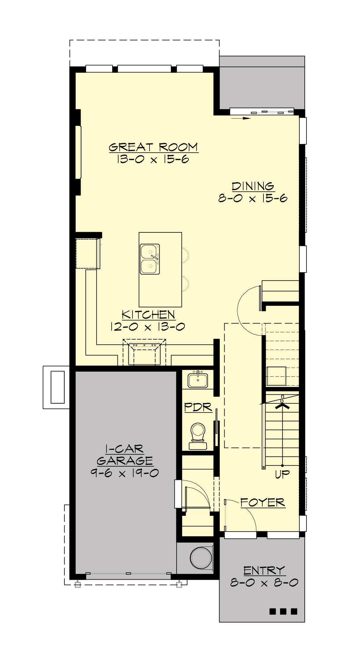
PLAN DETAILS FOR THE LODESTAR - PLAN M1735D1F-0
Area Summary
  • Total Area:1708 Sq. Ft.
  • Main Floor:768 Sq. Ft.
  • Upper Floor:940 Sq. Ft.
  • Garage Floor:224 Sq. Ft.
General Information
  • Stories:2
  • Width:22'-0"
  • Depth:54'-6"
  • Height:22'-0"
Architectural Style
  • Contemporary
  • Cottage
  • Modern
Number of Rooms
  • Bedrooms:3
  • Full Baths:2
  • Half Baths:1
Garage
  • Garage Size:1
  • Garage Door Location:Front
Roof Pitches
  • Primary:1:12
Wall Heights
  • Main:9'-0"
  • Upper:9'-0"
Foundation Type
  • Crawl Space
Roof Framing
  • Trusses
Floor Load
  • Live (lbs):40 PSF
  • Dead (lbs):10 PSF
Roof Load
  • Live (lbs):25 PSF
  • Dead (lbs):15 PSF
  • Wind:85 MPH
Design Features
  • New Plans
  • Front Porch
  • Great Room
  • Laundry Room @ & Upper Floor
  • Master Bedroom @ Upper Floor Rear
  • Contemporary Home Plans
  • Cottage House Plans
  • Modern Home Plans
  • Affordable Home Designs
  • Narrow Lot House Plans
  • Small House Plans
Front Rendering

Echo

M1735C1F-0
  • Total Area:1715 Sq. Ft.
  • Stories:2
  • Bedrooms:3
  • Full Baths:2
Front Rendering

Woden

M1735E1F-0
  • Total Area:1708 Sq. Ft.
  • Stories:2
  • Bedrooms:3
  • Full Baths:2
Front Photo

Telstar

M1735A1F-0
  • Total Area:1736 Sq. Ft.
  • Stories:2
  • Bedrooms:3
  • Full Baths:2
Front Photo

Lunaria

M1735B1F-0
  • Total Area:1736 Sq. Ft.
  • Stories:2
  • Bedrooms:3
  • Full Baths:2
Please enter the zip code of your building site, then select the Go! button to view pricing information for this house plan.

Recent View

© 2023 Architects Northwest All Rights Reserved Powered By: Visualwebz