Plan Pricing

$0

TRIPLE CREEK

M3760A4ST-0PB
  • Total Area:4802 Sq. Ft.
  • Garage Area:0 Sq Ft
  • Garage Size:4
  • Stories:3
  • Bedrooms:5
  • Full Baths:5
  • Half Baths:1
  • Width:76'-0"
  • Depth:101'-6"
  • Height:27'-0"
  • Foundation:Basement
PLAN DETAILS FOR THE TRIPLE CREEK - PLAN M3760A4ST-0PB
Area Summary
  • Total Area:4802 Sq. Ft.
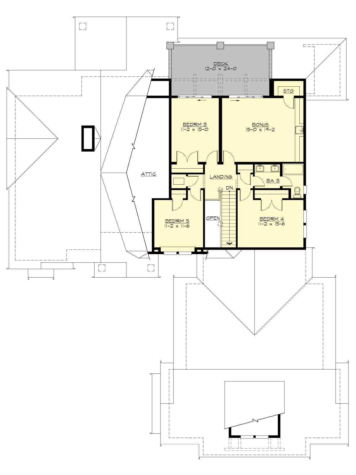
  • Main Floor:2646 Sq. Ft.
  • Upper Floor:1116 Sq. Ft.
  • Lower Floor:1040 Sq. Ft.
General Information
  • Stories:3
  • Width:76'-0"
  • Depth:101'-6"
  • Height:27'-0"
Architectural Style
  • Craftsman
  • Lodge
  • Mountain
Number of Rooms
  • Bedrooms:5
  • Full Baths:5
  • Half Baths:1
Garage
  • Garage Size:4
  • Garage Door Location:Side
  • Garage Type: Tandem
Roof Pitches
  • Primary:9:12
  • Secondary:3:12
Wall Heights
  • Main:10'-0"
  • Upper:9'-0"
  • Lower:8'-0"
Foundation Type
  • Cellar Basement
Roof Framing
  • Trusses
Floor Load
  • Live (lbs):40 PSF
  • Dead (lbs):10 PSF
Roof Load
  • Live (lbs):25 PSF
  • Dead (lbs):15 PSF
  • Wind:85 MPH
Design Features
  • New Plans
  • Bonus Space @ , Upper & Lower Floor
  • Den/Office
  • Rear Porch
  • Great Room
  • Laundry Room @ Main Floor
  • Master Bedroom @ Main Floor Rear
  • Craftsman House Plans
  • Lodge House Plans
  • Mountain House Plans
  • View Lot (Rear) Plans
Front Rendering

Triple Tree

M3760A4ST-0
  • Total Area:3762 Sq. Ft.
  • Stories:2
  • Bedrooms:5
  • Full Baths:4
Please enter the zip code of your building site, then select the Go! button to view pricing information for this house plan.

Recent View

© 2023 Architects Northwest All Rights Reserved Powered By: Visualwebz