Plan Pricing

$0

HOMEDALE VALLEY

R4110A4F-0
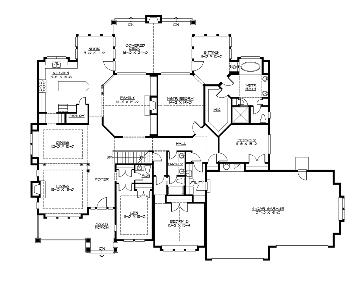
  • Total Area:4110 Sq. Ft.
  • Garage Area:1088 Sq Ft
  • Garage Size:4
  • Stories:2
  • Bedrooms:3
  • Full Baths:3
  • Half Baths:1
  • Width:96'-0"
  • Depth:76'-0"
  • Height:28'-0"
  • Foundation:Crawl Space
PLAN DETAILS FOR THE HOMEDALE VALLEY - PLAN R4110A4F-0
Area Summary
  • Total Area:4110 Sq. Ft.
  • Main Floor:3508 Sq. Ft.
  • Upper Floor:602 Sq. Ft.
  • Garage Floor:1088 Sq. Ft.
General Information
  • Stories:2
  • Width:96'-0"
  • Depth:76'-0"
  • Height:28'-0"
Architectural Style
  • Craftsman
  • Farmhouse
  • Shingle
Number of Rooms
  • Bedrooms:3
  • Full Baths:3
  • Half Baths:1
Garage
  • Garage Size:4
  • Garage Door Location:Front
Roof Pitches
  • Primary:8:12
  • Secondary:6:12
Wall Heights
  • Main:9'-0"
  • Upper:7'-0"
Foundation Type
  • Crawl Space
Roof Framing
  • Trusses
Floor Load
  • Live (lbs):40 PSF
  • Dead (lbs):10 PSF
Roof Load
  • Live (lbs):25 PSF
  • Dead (lbs):15 PSF
  • Wind:85 MPH
Design Features
  • Bonus Space @ & Upper Floor
  • Den/Office
  • Rear Porch
  • Great Room
  • Laundry Room @ Main Floor
  • Master Bedroom @ Main Floor Rear
  • Craftsman House Plans
  • Farmhouse Home Plans
  • Shingle House Plans
  • View Lot (Rear) Plans
  • Wide Lot House Plans
Front Exterior

Homedale

R4000A4F-0
  • Total Area:4000 Sq. Ft.
  • Stories:2
  • Bedrooms:3
  • Full Baths:2
Please enter the zip code of your building site, then select the Go! button to view pricing information for this house plan.

Recent View

© 2023 Architects Northwest All Rights Reserved Powered By: Visualwebz