Plan Pricing

$0

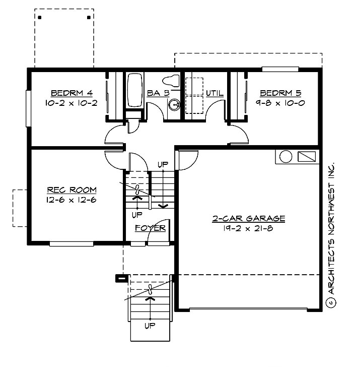
HAMPSHIRE

S1715A2F-0
  • Total Area:1715 Sq. Ft.
  • Garage Area:440 Sq Ft
  • Garage Size:2
  • Stories:2
  • Bedrooms:5
  • Full Baths:3
  • Width:40'-0"
  • Depth:35'-0"
  • Height:23'-0"
  • Foundation:Crawl Space
PLAN DETAILS FOR THE HAMPSHIRE - PLAN S1715A2F-0
Area Summary
  • Total Area:1715 Sq. Ft.
  • Main Floor:1080 Sq. Ft.
  • Lower Floor:635 Sq. Ft.
  • Garage Floor:440 Sq. Ft.
General Information
  • Stories:2
  • Width:40'-0"
  • Depth:35'-0"
  • Height:23'-0"
Architectural Style
  • Contemporary
  • Northwest
  • Ranch
Number of Rooms
  • Bedrooms:5
  • Full Baths:3
Garage
  • Garage Size:2
  • Garage Door Location:Front
Roof Pitches
  • Primary:5:12
Wall Heights
  • Main:8'-0"
  • Lower:8'-0"
Foundation Type
  • Crawl Space
Roof Framing
  • Trusses
Floor Load
  • Live (lbs):40 PSF
  • Dead (lbs):10 PSF
Roof Load
  • Live (lbs):25 PSF
  • Dead (lbs):15 PSF
  • Wind:85 MPH
Design Features
  • Bonus Space @ & Lower Floor
  • Great Room
  • Laundry Room @ & Lower Floor
  • Master Bedroom @ Main Floor Rear
  • Contemporary Home Plans
  • Northwest Floor Plans
  • Ranch House Plans
  • Affordable Home Designs
  • Narrow Lot House Plans
Please enter the zip code of your building site, then select the Go! button to view pricing information for this house plan.

Recent View

© 2023 Architects Northwest All Rights Reserved Powered By: Visualwebz