Plan Pricing

$0

RUDOLPH

S3345A2F-0DB
  • Total Area:3345 Sq. Ft.
  • Garage Area:480 Sq Ft
  • Garage Size:3
  • Stories:3
  • Bedrooms:3
  • Full Baths:3
  • Half Baths:1
  • Width:54'-0"
  • Depth:36'-0"
  • Height:34'-6"
  • Foundation:Basement
PLAN DETAILS FOR THE RUDOLPH - PLAN S3345A2F-0DB
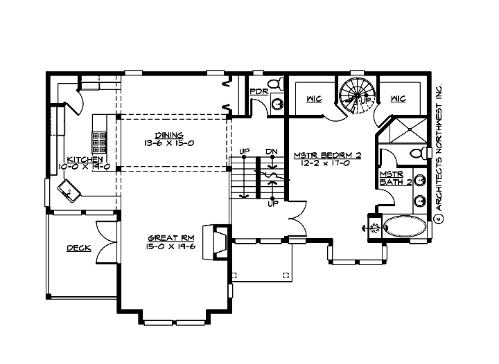
Area Summary
  • Total Area:3345 Sq. Ft.
  • Main Floor:1455 Sq. Ft.
  • Upper Floor:954 Sq. Ft.
  • Lower Floor:936 Sq. Ft.
  • Garage Floor:480 Sq. Ft.
General Information
  • Stories:3
  • Width:54'-0"
  • Depth:36'-0"
  • Height:34'-6"
Architectural Style
  • Craftsman
  • Northwest
  • Shingle
Number of Rooms
  • Bedrooms:3
  • Full Baths:3
  • Half Baths:1
Garage
  • Garage Size:3
  • Garage Door Location:Front
Roof Pitches
  • Primary:3:12
  • Secondary:8:12
Wall Heights
  • Main:9'-0"
  • Upper:8'-0"
  • Lower:9'-0"
Foundation Type
  • Daylight Basement
Roof Framing
  • Stick
Floor Load
  • Live (lbs):40 PSF
  • Dead (lbs):10 PSF
Roof Load
  • Live (lbs):25 PSF
  • Dead (lbs):15 PSF
  • Wind:85 MPH
Design Features
  • Bonus Space @ & Lower Floor
  • Great Room
  • Laundry Room @ & Upper Floor
  • Master Bedroom @ Upper Floor Front
  • Craftsman House Plans
  • Northwest Floor Plans
  • Shingle House Plans
  • View Lot (Front) Plans
Please enter the zip code of your building site, then select the Go! button to view pricing information for this house plan.

Recent View

Front Photo

MacLennon

M5702B3F-0
  • Total Area:6015 Sq. Ft.
  • Stories:2
  • Bedrooms:5
  • Full Baths:4
© 2023 Architects Northwest All Rights Reserved Powered By: Visualwebz