Plan Pricing

$0

MARINA

T1700A2F-0
  • Total Area:1700 Sq. Ft.
  • Garage Area:506 Sq Ft
  • Garage Size:2
  • Stories:2
  • Bedrooms:3
  • Full Baths:2
  • Half Baths:1
  • Width:42'-0"
  • Depth:44'-0"
  • Height:25'-0"
  • Foundation:Crawl Space
PLAN DETAILS FOR THE MARINA - PLAN T1700A2F-0
Area Summary
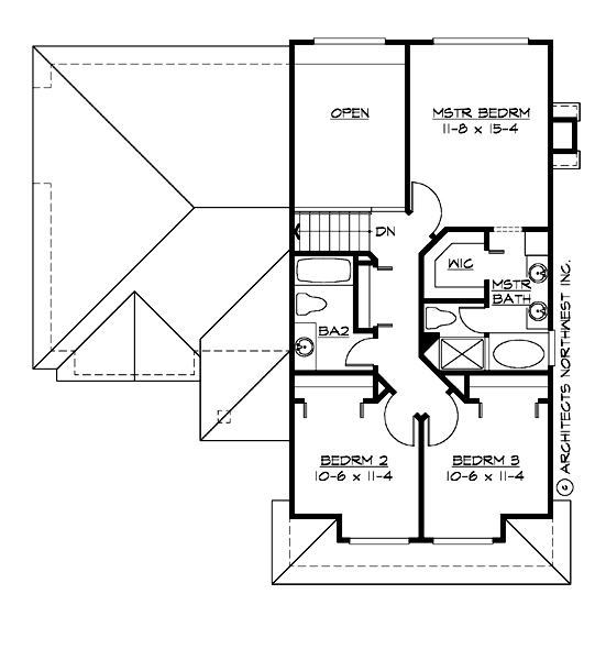
  • Total Area:1700 Sq. Ft.
  • Main Floor:960 Sq. Ft.
  • Upper Floor:740 Sq. Ft.
  • Garage Floor:506 Sq. Ft.
General Information
  • Stories:2
  • Width:42'-0"
  • Depth:44'-0"
  • Height:25'-0"
Architectural Style
  • Craftsman
  • Northwest
  • Traditional
Number of Rooms
  • Bedrooms:3
  • Full Baths:2
  • Half Baths:1
Garage
  • Garage Size:2
  • Garage Door Location:Front
Roof Pitches
  • Primary:8:12
Wall Heights
  • Main:8'-0"
  • Upper:8'-0"
Foundation Type
  • Crawl Space
Roof Framing
  • Trusses
Floor Load
  • Live (lbs):40 PSF
  • Dead (lbs):10 PSF
Roof Load
  • Live (lbs):25 PSF
  • Dead (lbs):15 PSF
  • Wind:85 MPH
Design Features
  • Great Room
  • Laundry Room @ Main Floor
  • Master Bedroom @ Upper Floor Rear
  • Craftsman House Plans
  • Northwest Floor Plans
  • Traditional House Plans
  • Affordable Home Designs
  • Narrow Lot House Plans
Please enter the zip code of your building site, then select the Go! button to view pricing information for this house plan.

Recent View

Front Rendering

Arborwoods

M2450A3F-0
  • Total Area:2450 Sq. Ft.
  • Stories:2
  • Bedrooms:4
  • Full Baths:2
© 2023 Architects Northwest All Rights Reserved Powered By: Visualwebz