Plan Pricing

$0

MELBA

M1795A2F-0
  • Total Area:1795 Sq. Ft.
  • Garage Area:420 Sq Ft
  • Garage Size:2
  • Stories:2
  • Bedrooms:3
  • Full Baths:2
  • Half Baths:1
  • Width:40'-0"
  • Depth:44'-0"
  • Height:23'-6"
  • Foundation:Crawl Space
PLAN DETAILS FOR THE MELBA - PLAN M1795A2F-0
Area Summary
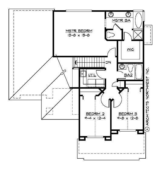
  • Total Area:1795 Sq. Ft.
  • Main Floor:955 Sq. Ft.
  • Upper Floor:840 Sq. Ft.
  • Garage Floor:420 Sq. Ft.
General Information
  • Stories:2
  • Width:40'-0"
  • Depth:44'-0"
  • Height:23'-6"
Architectural Style
  • Contemporary
  • Craftsman
  • Northwest
Number of Rooms
  • Bedrooms:3
  • Full Baths:2
  • Half Baths:1
Garage
  • Garage Size:2
  • Garage Door Location:Front
Roof Pitches
  • Primary:7:12
Wall Heights
  • Main:8'-0"
  • Upper:8'-0"
Foundation Type
  • Crawl Space
Roof Framing
  • Combination
Floor Load
  • Live (lbs):40 PSF
  • Dead (lbs):10 PSF
Roof Load
  • Live (lbs):25 PSF
  • Dead (lbs):15 PSF
  • Wind:85 MPH
Design Features
  • Den/Office
  • Great Room
  • Laundry Room @ & Upper Floor
  • Master Bedroom @ Upper Floor Rear
  • Contemporary Home Plans
  • Craftsman House Plans
  • Northwest Floor Plans
  • Narrow Lot House Plans
  • Small House Plans
Front Photo

Melba Meadows

M1795A3F-0
  • Total Area:1795 Sq. Ft.
  • Stories:2
  • Bedrooms:3
  • Full Baths:2
Please enter the zip code of your building site, then select the Go! button to view pricing information for this house plan.

Recent View

© 2023 Architects Northwest All Rights Reserved Powered By: Visualwebz