Plan Pricing

$0

MALDEN RIDGE

M1852B2F-0
  • Total Area:1852 Sq. Ft.
  • Garage Area:418 Sq Ft
  • Garage Size:2
  • Stories:2
  • Bedrooms:4
  • Full Baths:2
  • Half Baths:1
  • Width:30'-0"
  • Depth:51'-0"
  • Height:22'-0"
  • Foundation:Crawl Space
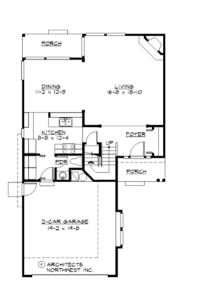
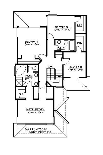
PLAN DETAILS FOR THE MALDEN RIDGE - PLAN M1852B2F-0
Area Summary
  • Total Area:1852 Sq. Ft.
  • Main Floor:807 Sq. Ft.
  • Upper Floor:1045 Sq. Ft.
  • Garage Floor:418 Sq. Ft.
General Information
  • Stories:2
  • Width:30'-0"
  • Depth:51'-0"
  • Height:22'-0"
Architectural Style
  • Craftsman
  • Farmhouse
  • Northwest
Number of Rooms
  • Bedrooms:4
  • Full Baths:2
  • Half Baths:1
Garage
  • Garage Size:2
  • Garage Door Location:Front
Roof Pitches
  • Primary:5:12
Wall Heights
  • Main:8'-0"
  • Upper:8'-0"
Foundation Type
  • Crawl Space
Roof Framing
  • Trusses
Floor Load
  • Live (lbs):40 PSF
  • Dead (lbs):10 PSF
Roof Load
  • Live (lbs):25 PSF
  • Dead (lbs):15 PSF
  • Wind:85 MPH
Design Features
  • Front and Rear Porch
  • Great Room
  • Laundry Room @ Main Floor
  • Master Bedroom @ Upper Floor Front
  • Craftsman House Plans
  • Farmhouse Home Plans
  • Northwest Floor Plans
  • Narrow Lot House Plans
  • Small House Plans
Front Rendering

Malden Meadows

M1852A2F-0
  • Total Area:1852 Sq. Ft.
  • Stories:2
  • Bedrooms:4
  • Full Baths:2
Front Photo

Malden

M1852A2S-0
  • Total Area:1852 Sq. Ft.
  • Stories:2
  • Bedrooms:4
  • Full Baths:2
Front Photo

Malden Park

M1852B2S-0
  • Total Area:1852 Sq. Ft.
  • Stories:2
  • Bedrooms:4
  • Full Baths:2
Front Rendering

Othello Meadows

M1978A2F-0
  • Total Area:1978 Sq. Ft.
  • Stories:2
  • Bedrooms:4
  • Full Baths:2
Front Rendering

Othello

M1978A2S-0
  • Total Area:1978 Sq. Ft.
  • Stories:2
  • Bedrooms:4
  • Full Baths:2
Front Rendering

Othello Ridge

M1978B2F-0
  • Total Area:1978 Sq. Ft.
  • Stories:2
  • Bedrooms:4
  • Full Baths:2
Front Rendering

Othello Park

M1978B2S-0
  • Total Area:1978 Sq. Ft.
  • Stories:2
  • Bedrooms:4
  • Full Baths:2
Please enter the zip code of your building site, then select the Go! button to view pricing information for this house plan.

Recent View

Front Photo

Bellewood

M2450C3F-0
  • Total Area:2456 Sq. Ft.
  • Stories:2
  • Bedrooms:4
  • Full Baths:2
© 2023 Architects Northwest All Rights Reserved Powered By: Visualwebz