Plan Pricing

$0

EVERETT RIDGE

M1870A2F-1DB
  • Total Area:2807 Sq. Ft.
  • Garage Area:392 Sq Ft
  • Garage Size:2
  • Stories:3
  • Bedrooms:4
  • Full Baths:3
  • Half Baths:1
  • Width:34'-0"
  • Depth:59'-0"
  • Height:24'-6"
  • Foundation:Basement
PLAN DETAILS FOR THE EVERETT RIDGE - PLAN M1870A2F-1DB
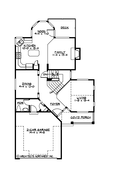
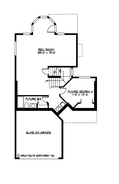
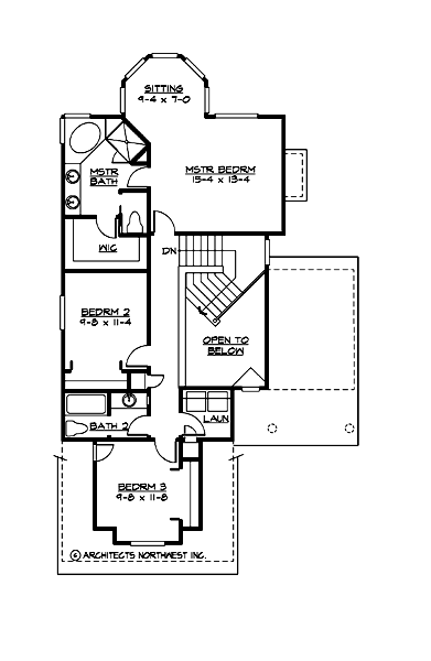
Area Summary
  • Total Area:2807 Sq. Ft.
  • Main Floor:933 Sq. Ft.
  • Upper Floor:941 Sq. Ft.
  • Lower Floor:933 Sq. Ft.
  • Garage Floor:392 Sq. Ft.
General Information
  • Stories:3
  • Width:34'-0"
  • Depth:59'-0"
  • Height:24'-6"
Architectural Style
  • Craftsman
  • Northwest
  • Shingle
Number of Rooms
  • Bedrooms:4
  • Full Baths:3
  • Half Baths:1
Garage
  • Garage Size:2
  • Garage Door Location:Front
Roof Pitches
  • Primary:7:12
Wall Heights
  • Main:8'-0"
  • Upper:8'-0"
  • Lower:9'-0"
Foundation Type
  • Daylight Basement
Roof Framing
  • Trusses
Floor Load
  • Live (lbs):40 PSF
  • Dead (lbs):10 PSF
Roof Load
  • Live (lbs):25 PSF
  • Dead (lbs):15 PSF
  • Wind:85 MPH
Design Features
  • Bonus Space @ & Lower Floor
  • Front Porch
  • Great Room
  • Laundry Room @ & Upper Floor
  • Master Bedroom @ Upper Floor Rear
  • Craftsman House Plans
  • Northwest Floor Plans
  • Shingle House Plans
  • Narrow Lot House Plans
Front Rendering

Everett

M1870A2F-0
  • Total Area:1870 Sq. Ft.
  • Stories:2
  • Bedrooms:3
  • Full Baths:2
Please enter the zip code of your building site, then select the Go! button to view pricing information for this house plan.

Recent View

Front Photo

Glendale

M3432A3FT-1
  • Total Area:3857 Sq. Ft.
  • Stories:2
  • Bedrooms:4
  • Full Baths:4
Front PHoto

Larissa

M3710A3FT-0
  • Total Area:3702 Sq. Ft.
  • Stories:2
  • Bedrooms:5
  • Full Baths:4
Front Rendering

Newcastle

M3200A4ST-0
  • Total Area:3200 Sq. Ft.
  • Stories:2
  • Bedrooms:3
  • Full Baths:2
Front Rendering

Isington

M2558A0-0
  • Total Area:2558 Sq. Ft.
  • Stories:2
  • Bedrooms:3
  • Full Baths:2
Front Photo

Berkshire

M5668A0-0DB
  • Total Area:5668 Sq. Ft.
  • Stories:3
  • Bedrooms:5
  • Full Baths:4
Front Rendering

Roosevelt

M3683A3F-0
  • Total Area:3683 Sq. Ft.
  • Stories:2
  • Bedrooms:4
  • Full Baths:3
Front Rendering

Glenhaven

M4750A3F-0
  • Total Area:4750 Sq. Ft.
  • Stories:2
  • Bedrooms:4
  • Full Baths:3
Front Photo

Macgowan

M4257A3F-1R
  • Total Area:4258 Sq. Ft.
  • Stories:2
  • Bedrooms:5
  • Full Baths:4
© 2023 Architects Northwest All Rights Reserved Powered By: Visualwebz