Plan Pricing

$0

PORTLAND

M1969A2R-0
  • Total Area:1969 Sq. Ft.
  • Garage Area:495 Sq Ft
  • Garage Size:2
  • Stories:2
  • Bedrooms:3
  • Full Baths:2
  • Half Baths:1
  • Width:35'-0"
  • Depth:69'-0"
  • Height:24'-0"
  • Foundation:Crawl Space
PLAN DETAILS FOR THE PORTLAND - PLAN M1969A2R-0
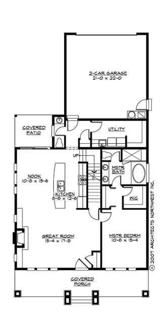
Area Summary
  • Total Area:1969 Sq. Ft.
  • Main Floor:1318 Sq. Ft.
  • Upper Floor:651 Sq. Ft.
  • Garage Floor:495 Sq. Ft.
General Information
  • Stories:2
  • Width:35'-0"
  • Depth:69'-0"
  • Height:24'-0"
Architectural Style
  • Bungalow
  • Cottage
  • Farmhouse
Number of Rooms
  • Bedrooms:3
  • Full Baths:2
  • Half Baths:1
Garage
  • Garage Size:2
  • Garage Door Location:Rear
Roof Pitches
  • Primary:10:12
  • Secondary:8:12
Wall Heights
  • Main:9'-0"
  • Upper:8'-0"
Foundation Type
  • Crawl Space
Roof Framing
  • Combination
Floor Load
  • Live (lbs):40 PSF
  • Dead (lbs):10 PSF
Roof Load
  • Live (lbs):25 PSF
  • Dead (lbs):15 PSF
  • Wind:85 MPH
Design Features
  • Green Plans
  • Bonus Space @ & Upper Floor
  • Front Porch
  • Great Room
  • Laundry Room @ Main Floor
  • Master Bedroom @ Main Floor Front
  • Bungalow House Plans
  • Cottage House Plans
  • Farmhouse Home Plans
  • Small House Plans
Please enter the zip code of your building site, then select the Go! button to view pricing information for this house plan.

Recent View

Front Rendering

Belhaven

M2630A3RD-0
  • Total Area:2630 Sq. Ft.
  • Stories:2
  • Bedrooms:3
  • Full Baths:2
© 2023 Architects Northwest All Rights Reserved Powered By: Visualwebz