Plan Pricing

$0

BOYLSTON CREST

M2100B3F-0DB
  • Total Area:3073 Sq. Ft.
  • Garage Area:680 Sq Ft
  • Garage Size:3
  • Stories:3
  • Bedrooms:6
  • Full Baths:3
  • Half Baths:1
  • Width:62'-0"
  • Depth:42'-0"
  • Height:25'-6"
  • Foundation:Basement
PLAN DETAILS FOR THE BOYLSTON CREST - PLAN M2100B3F-0DB
Area Summary
  • Total Area:3073 Sq. Ft.
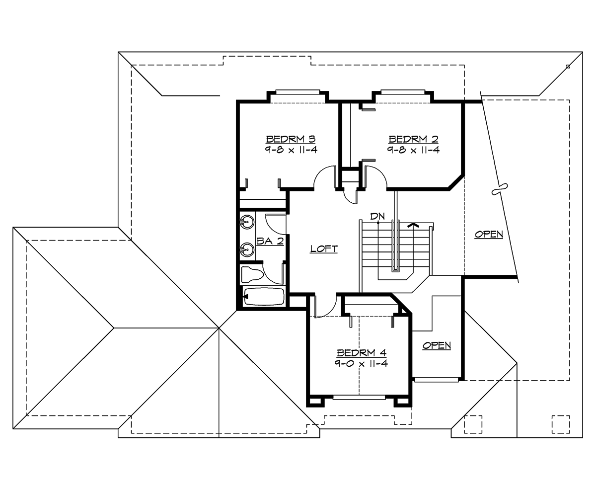
  • Main Floor:1492 Sq. Ft.
  • Upper Floor:608 Sq. Ft.
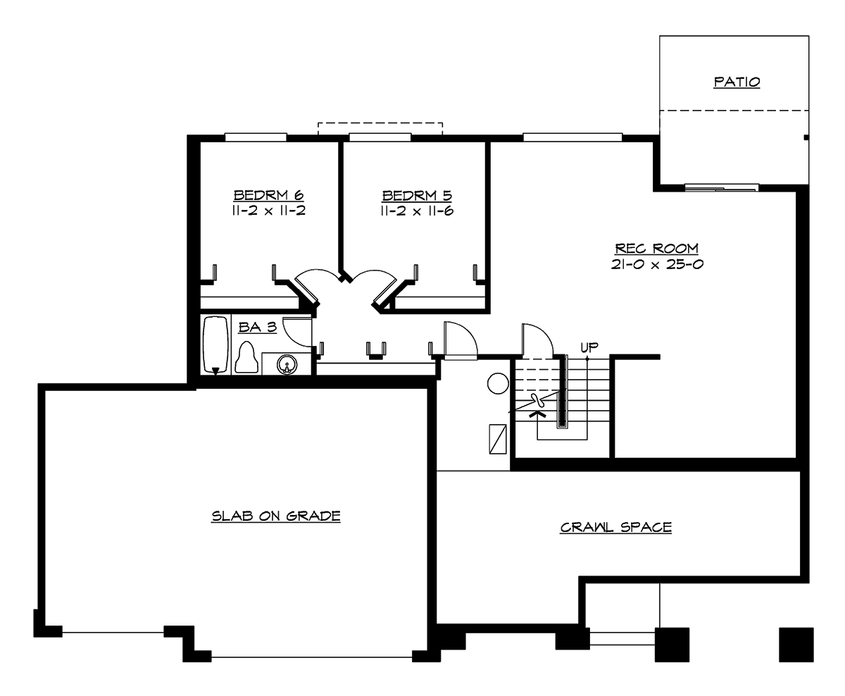
  • Lower Floor:973 Sq. Ft.
  • Garage Floor:680 Sq. Ft.
General Information
  • Stories:3
  • Width:62'-0"
  • Depth:42'-0"
  • Height:25'-6"
Architectural Style
  • Craftsman
  • Northwest
  • Traditional
Number of Rooms
  • Bedrooms:6
  • Full Baths:3
  • Half Baths:1
Garage
  • Garage Size:3
  • Garage Door Location:Front
Roof Pitches
  • Primary:8:12
Wall Heights
  • Main:8'-0"
  • Upper:8'-0"
  • Lower:8'-0"
Foundation Type
  • Daylight Basement
Roof Framing
  • Combination
Floor Load
  • Live (lbs):40 PSF
  • Dead (lbs):10 PSF
Roof Load
  • Live (lbs):25 PSF
  • Dead (lbs):15 PSF
  • Wind:85 MPH
Design Features
  • Bonus Space @ & Lower Floor
  • Front Porch
  • Great Room
  • Laundry Room @ Main Floor
  • Master Bedroom @ Main Floor Rear
  • Craftsman House Plans
  • Northwest Floor Plans
  • Traditional House Plans
  • View Lot (Rear) Plans
Front Rendering

Boylston

M2100A3F-0
  • Total Area:2100 Sq. Ft.
  • Stories:2
  • Bedrooms:4
  • Full Baths:2
Please enter the zip code of your building site, then select the Go! button to view pricing information for this house plan.

Recent View

Front Rendering

San Juan

M1585B2FT-0
  • Total Area:1680 Sq. Ft.
  • Stories:2
  • Bedrooms:2
  • Full Baths:2
© 2023 Architects Northwest All Rights Reserved Powered By: Visualwebz