Plan Pricing

$0

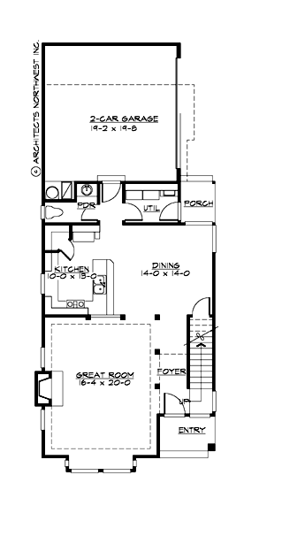
BROOKLYN

M2110A2S-0
  • Total Area:2110 Sq. Ft.
  • Garage Area:412 Sq Ft
  • Garage Size:2
  • Stories:2
  • Bedrooms:4
  • Full Baths:2
  • Half Baths:1
  • Width:25'-0"
  • Depth:62'-0"
  • Height:27'-0"
  • Foundation:Crawl Space
PLAN DETAILS FOR THE BROOKLYN - PLAN M2110A2S-0
Area Summary
  • Total Area:2110 Sq. Ft.
  • Main Floor:930 Sq. Ft.
  • Upper Floor:1180 Sq. Ft.
  • Garage Floor:412 Sq. Ft.
General Information
  • Stories:2
  • Width:25'-0"
  • Depth:62'-0"
  • Height:27'-0"
Architectural Style
  • Craftsman
  • Northwest
  • Shotgun
Number of Rooms
  • Bedrooms:4
  • Full Baths:2
  • Half Baths:1
Garage
  • Garage Size:2
  • Garage Door Location:Side
Roof Pitches
  • Primary:6:12
Wall Heights
  • Main:9'-0"
  • Upper:8'-0"
Foundation Type
  • Crawl Space
Roof Framing
  • Trusses
Floor Load
  • Live (lbs):40 PSF
  • Dead (lbs):10 PSF
Roof Load
  • Live (lbs):25 PSF
  • Dead (lbs):15 PSF
  • Wind:85 MPH
Design Features
  • Great Room
  • Laundry Room @ Main Floor
  • Master Bedroom @ Upper Floor Front
  • Craftsman House Plans
  • Northwest Floor Plans
  • Shotgun Floor Plans
  • Narrow Lot House Plans
Front Rendering

Brooklyn Park

M2110A2R-0
  • Total Area:2110 Sq. Ft.
  • Stories:2
  • Bedrooms:4
  • Full Baths:2
Please enter the zip code of your building site, then select the Go! button to view pricing information for this house plan.

Recent View

Front Photo

Highlands

M3634A3S-0
  • Total Area:3698 Sq. Ft.
  • Stories:2
  • Bedrooms:3
  • Full Baths:2
Front Rendering

Graham

M2457A2RU-0DB
  • Total Area:2457 Sq. Ft.
  • Stories:3
  • Bedrooms:4
  • Full Baths:3
Front Rendering

Latona

M2105A3F-0
  • Total Area:2105 Sq. Ft.
  • Stories:2
  • Bedrooms:3
  • Full Baths:2
© 2023 Architects Northwest All Rights Reserved Powered By: Visualwebz