Plan Pricing

$0

IVANHOE

M2129A1F-0
  • Total Area:2129 Sq. Ft.
  • Garage Area:327 Sq Ft
  • Garage Size:1
  • Stories:2
  • Bedrooms:2
  • Full Baths:2
  • Half Baths:1
  • Width:53'-0"
  • Depth:43'-0"
  • Height:22'-0"
  • Foundation:Crawl Space
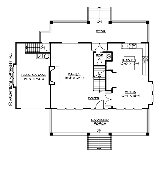
PLAN DETAILS FOR THE IVANHOE - PLAN M2129A1F-0
Area Summary
  • Total Area:2129 Sq. Ft.
  • Main Floor:945 Sq. Ft.
  • Upper Floor:1184 Sq. Ft.
  • Garage Floor:327 Sq. Ft.
General Information
  • Stories:2
  • Width:53'-0"
  • Depth:43'-0"
  • Height:22'-0"
Architectural Style
  • Country
  • Farmhouse
  • Shingle
Number of Rooms
  • Bedrooms:2
  • Full Baths:2
  • Half Baths:1
Garage
  • Garage Size:1
  • Garage Door Location:Front
Roof Pitches
  • Primary:4:12
  • Secondary:12:12
Wall Heights
  • Main:9'-0"
  • Upper:8'-0"
Foundation Type
  • Crawl Space
Roof Framing
  • Combination
Floor Load
  • Live (lbs):40 PSF
  • Dead (lbs):10 PSF
Roof Load
  • Live (lbs):25 PSF
  • Dead (lbs):15 PSF
  • Wind:85 MPH
Design Features
  • Bonus Space @ & Upper Floor
  • Den/Office
  • Front Porch
  • Great Room
  • Laundry Room @ & Upper Floor
  • Master Bedroom @ Upper Floor Front
  • Country House Plans
  • Farmhouse Home Plans
  • Shingle House Plans
  • Vacation House Plans
  • View Lot (Front) Plans
Please enter the zip code of your building site, then select the Go! button to view pricing information for this house plan.

Recent View

Front Photo

Mapleton Farm

M3705A3F-4R
  • Total Area:3828 Sq. Ft.
  • Stories:2
  • Bedrooms:5
  • Full Baths:4
© 2023 Architects Northwest All Rights Reserved Powered By: Visualwebz