Plan Pricing

$0

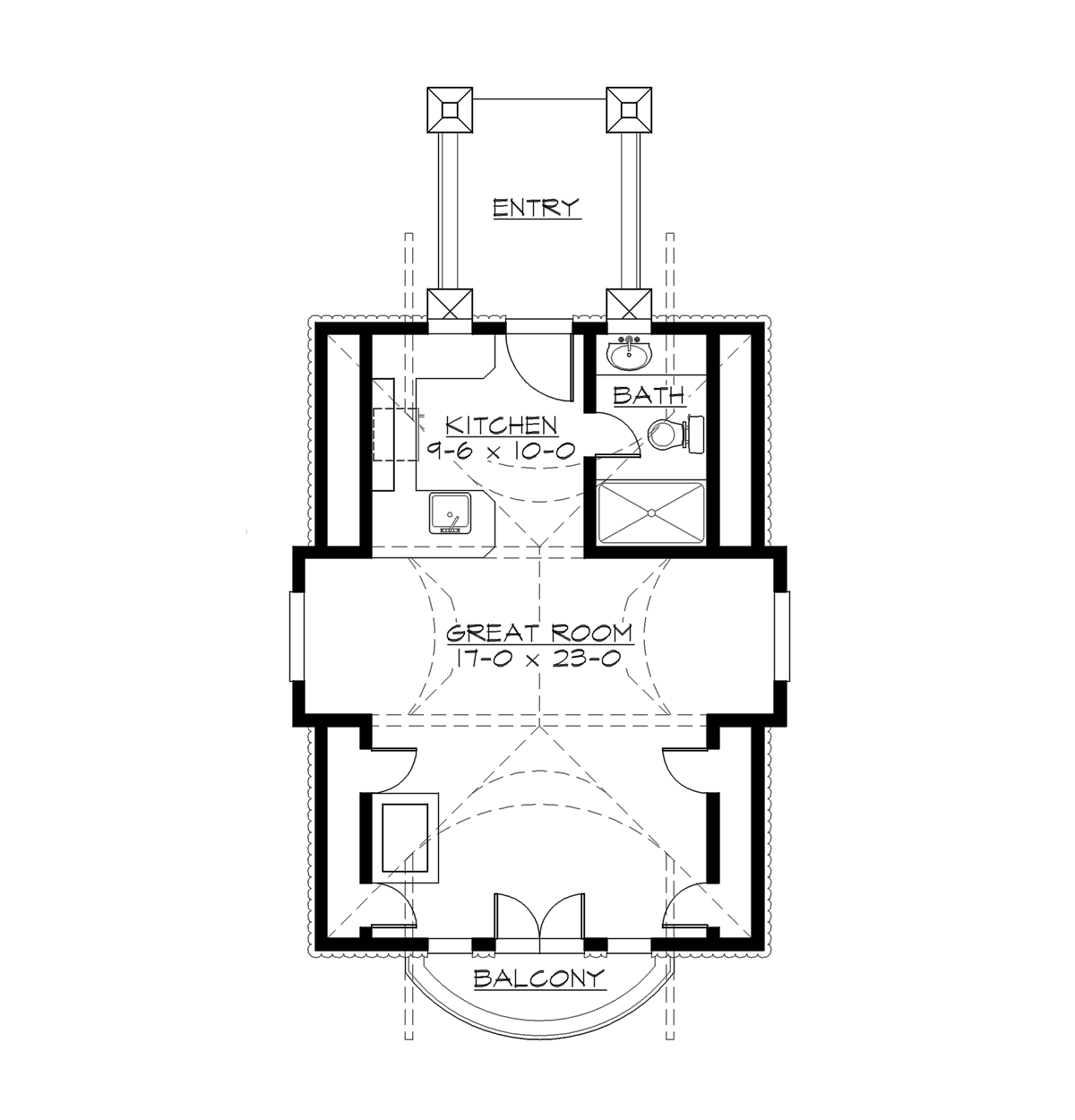
PONDERAY

A1250A0-0
  • Total Area:590 Sq. Ft.
  • Garage Area:660 Sq Ft
  • Garage Size:1
  • Stories:2
  • Full Baths:1
  • Width:22'-0"
  • Depth:42'-0"
  • Height:15'-6"
  • Foundation:Slab
PLAN DETAILS FOR THE PONDERAY - PLAN A1250A0-0
Area Summary
  • Total Area:590 Sq. Ft.
  • Main Floor:590 Sq. Ft.
  • Garage Floor:660 Sq. Ft.
General Information
  • Stories:2
  • Width:22'-0"
  • Depth:42'-0"
  • Height:15'-6"
Architectural Style
  • Chateau
  • European
  • Tudor
Number of Rooms
  • Full Baths:1
Garage
  • Garage Size:1
Roof Pitches
  • Primary:12:12
Wall Heights
  • Main:8'-0"
  • Lower:8'-0"
Foundation Type
  • Slab On Grade
Roof Framing
  • Stick
Floor Load
  • Live (lbs):40 PSF
  • Dead (lbs):10 PSF
Roof Load
  • Live (lbs):25 PSF
  • Dead (lbs):15 PSF
  • Wind:85 MPH
Design Features
  • Great Room
  • Chateau House Plans
  • European House Plans
  • Tudor House Plans
  • Narrow Lot House Plans
Please enter the zip code of your building site, then select the Go! button to view pricing information for this house plan.

Recent View

Front Rendering

Chatham Meadows

M7550A4S-1
  • Total Area:9250 Sq. Ft.
  • Stories:4
  • Bedrooms:4
  • Full Baths:5
© 2023 Architects Northwest All Rights Reserved Powered By: Visualwebz