Plan Pricing

$0

ARBORDALE

M2265A2F-0
  • Total Area:2265 Sq. Ft.
  • Garage Area:428 Sq Ft
  • Garage Size:2
  • Stories:2
  • Bedrooms:4
  • Full Baths:2
  • Half Baths:1
  • Width:48'-0"
  • Depth:44'-0"
  • Height:26'-0"
  • Foundation:Crawl Space
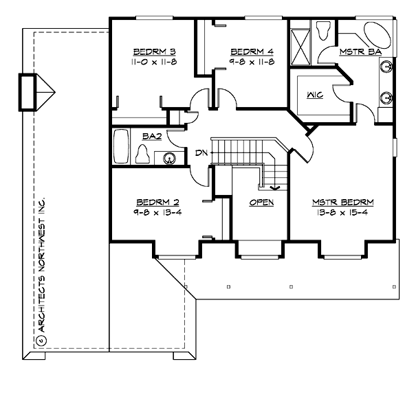
PLAN DETAILS FOR THE ARBORDALE - PLAN M2265A2F-0
Area Summary
  • Total Area:2265 Sq. Ft.
  • Main Floor:1228 Sq. Ft.
  • Upper Floor:1037 Sq. Ft.
  • Garage Floor:428 Sq. Ft.
General Information
  • Stories:2
  • Width:48'-0"
  • Depth:44'-0"
  • Height:26'-0"
Architectural Style
  • Country
  • Craftsman
  • Farmhouse
Number of Rooms
  • Bedrooms:4
  • Full Baths:2
  • Half Baths:1
Garage
  • Garage Size:2
  • Garage Door Location:Front
Roof Pitches
  • Primary:7:12
  • Secondary:12:12
Wall Heights
  • Main:8'-0"
  • Upper:8'-0"
Foundation Type
  • Crawl Space
Roof Framing
  • Trusses
Floor Load
  • Live (lbs):40 PSF
  • Dead (lbs):10 PSF
Roof Load
  • Live (lbs):25 PSF
  • Dead (lbs):15 PSF
  • Wind:85 MPH
Design Features
  • Front Porch
  • Great Room
  • Laundry Room @ Main Floor
  • Master Bedroom @ Upper Floor Front
  • Country House Plans
  • Craftsman House Plans
  • Farmhouse Home Plans
  • Narrow Lot House Plans
  • Small House Plans
Front Rendering

Arbordale Lane

M2265A3F-0
  • Total Area:2265 Sq. Ft.
  • Stories:2
  • Bedrooms:4
  • Full Baths:2
Front Rendering

Westbeck

M2265C2F-0
  • Total Area:2306 Sq. Ft.
  • Stories:2
  • Bedrooms:4
  • Full Baths:2
Front Rendering

Westbeck Lane

M2265C3F-0
  • Total Area:2306 Sq. Ft.
  • Stories:2
  • Bedrooms:4
  • Full Baths:2
Front Rendering

Arborwoods

M2450A3F-0
  • Total Area:2450 Sq. Ft.
  • Stories:2
  • Bedrooms:4
  • Full Baths:2
Front Photo

Bellewood

M2450C3F-0
  • Total Area:2456 Sq. Ft.
  • Stories:2
  • Bedrooms:4
  • Full Baths:2
Please enter the zip code of your building site, then select the Go! button to view pricing information for this house plan.

Recent View

Front Rendering

Westbeck Lane

M2265C3F-0
  • Total Area:2306 Sq. Ft.
  • Stories:2
  • Bedrooms:4
  • Full Baths:2
© 2023 Architects Northwest All Rights Reserved Powered By: Visualwebz