Plan Pricing

$0

AUBREY RIDGE

M2300A4FT-0DB
  • Total Area:3570 Sq. Ft.
  • Garage Area:720 Sq Ft
  • Garage Size:4
  • Stories:3
  • Bedrooms:3
  • Full Baths:3
  • Half Baths:1
  • Width:52'-0"
  • Depth:44'-0"
  • Height:26'-6"
  • Foundation:Basement
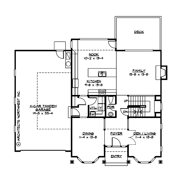
PLAN DETAILS FOR THE AUBREY RIDGE - PLAN M2300A4FT-0DB
Area Summary
  • Total Area:3570 Sq. Ft.
  • Main Floor:1270 Sq. Ft.
  • Upper Floor:1030 Sq. Ft.
  • Lower Floor:1270 Sq. Ft.
  • Garage Floor:720 Sq. Ft.
General Information
  • Stories:3
  • Width:52'-0"
  • Depth:44'-0"
  • Height:26'-6"
Architectural Style
  • Country
  • Craftsman
  • Farmhouse
Number of Rooms
  • Bedrooms:3
  • Full Baths:3
  • Half Baths:1
Garage
  • Garage Size:4
  • Garage Door Location:Front
  • Garage Type: Tandem
Roof Pitches
  • Primary:6:12
  • Secondary:4:12
Wall Heights
  • Main:9'-0"
  • Upper:8'-0"
  • Lower:8'-0"
Foundation Type
  • Daylight Basement
Roof Framing
  • Trusses
Floor Load
  • Live (lbs):40 PSF
  • Dead (lbs):10 PSF
Roof Load
  • Live (lbs):25 PSF
  • Dead (lbs):15 PSF
  • Wind:85 MPH
Design Features
  • Bonus Space @ & Lower Floor
  • Great Room
  • Laundry Room @ Main Floor
  • Master Bedroom @ Upper Floor Rear
  • Country House Plans
  • Craftsman House Plans
  • Farmhouse Home Plans
  • View Lot (Rear) Plans
Front Rendering

Aubrey

M2300A4FT-0
  • Total Area:2300 Sq. Ft.
  • Stories:2
  • Bedrooms:3
  • Full Baths:2
Front Rendering

Aubrey Lane

M2300A4FT-1
  • Total Area:2540 Sq. Ft.
  • Stories:2
  • Bedrooms:3
  • Full Baths:2
Please enter the zip code of your building site, then select the Go! button to view pricing information for this house plan.

Recent View

Front Rendering

Lowell Lake

M1974B2F-0
  • Total Area:2096 Sq. Ft.
  • Stories:2
  • Bedrooms:3
  • Full Baths:2
© 2023 Architects Northwest All Rights Reserved Powered By: Visualwebz