Plan Pricing

$0

ASHWORTH

M2338A3FT-1
  • Total Area:2819 Sq. Ft.
  • Garage Area:552 Sq Ft
  • Garage Size:3
  • Stories:2
  • Bedrooms:3
  • Full Baths:2
  • Half Baths:1
  • Width:44'-0"
  • Depth:44'-0"
  • Height:28'-0"
  • Foundation:Crawl Space
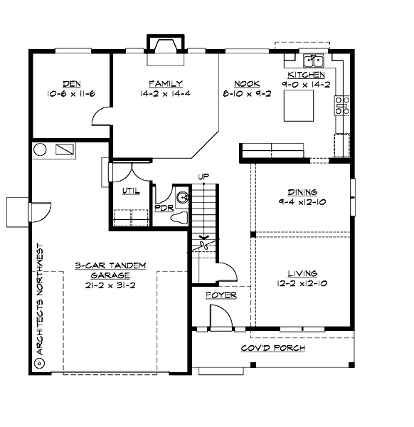
PLAN DETAILS FOR THE ASHWORTH - PLAN M2338A3FT-1
Area Summary
  • Total Area:2819 Sq. Ft.
  • Main Floor:1252 Sq. Ft.
  • Upper Floor:1567 Sq. Ft.
  • Garage Floor:552 Sq. Ft.
General Information
  • Stories:2
  • Width:44'-0"
  • Depth:44'-0"
  • Height:28'-0"
Architectural Style
  • Craftsman
  • Farmhouse
  • Northwest
Number of Rooms
  • Bedrooms:3
  • Full Baths:2
  • Half Baths:1
Garage
  • Garage Size:3
  • Garage Door Location:Front
  • Garage Type: Tandem
Roof Pitches
  • Primary:8:12
  • Secondary:10:12
Wall Heights
  • Main:9'-0"
  • Upper:8'-0"
Foundation Type
  • Crawl Space
Roof Framing
  • Combination
Floor Load
  • Live (lbs):40 PSF
  • Dead (lbs):10 PSF
Roof Load
  • Live (lbs):25 PSF
  • Dead (lbs):15 PSF
  • Wind:85 MPH
Design Features
  • Bonus Space @ & Upper Floor
  • Den/Office
  • Front Porch
  • Great Room
  • Laundry Room @ Main Floor
  • Master Bedroom @ Upper Floor Front
  • Craftsman House Plans
  • Farmhouse Home Plans
  • Northwest Floor Plans
  • Narrow Lot House Plans
  • Small House Plans
Front Rendering

Ashworth Lane

M2338B3FT-1
  • Total Area:2819 Sq. Ft.
  • Stories:2
  • Bedrooms:3
  • Full Baths:2
Please enter the zip code of your building site, then select the Go! button to view pricing information for this house plan.

Recent View

Front Exterior

Brightwater

M2339A2F-0
  • Total Area:2339 Sq. Ft.
  • Stories:2
  • Bedrooms:3
  • Full Baths:2
Front Rendering

Rosewood

M1905A2F-0
  • Total Area:1905 Sq. Ft.
  • Stories:2
  • Bedrooms:4
  • Full Baths:2
© 2023 Architects Northwest All Rights Reserved Powered By: Visualwebz