Plan Pricing

$0

BRIGHTWATER

M2339A2F-0
  • Total Area:2339 Sq. Ft.
  • Garage Area:628 Sq Ft
  • Garage Size:2
  • Stories:2
  • Bedrooms:3
  • Full Baths:2
  • Half Baths:1
  • Width:60'-6"
  • Depth:42'-0"
  • Height:24'-0"
  • Foundation:Crawl Space
PLAN DETAILS FOR THE BRIGHTWATER - PLAN M2339A2F-0
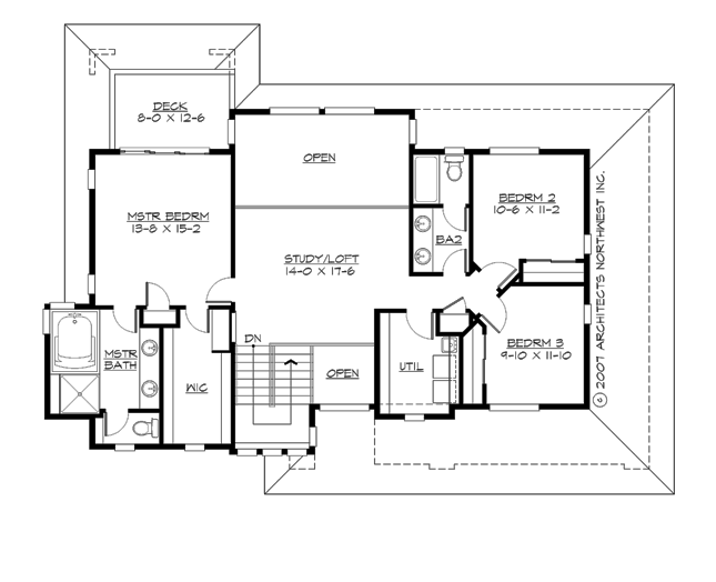
Area Summary
  • Total Area:2339 Sq. Ft.
  • Main Floor:1157 Sq. Ft.
  • Upper Floor:1182 Sq. Ft.
  • Garage Floor:628 Sq. Ft.
General Information
  • Stories:2
  • Width:60'-6"
  • Depth:42'-0"
  • Height:24'-0"
Architectural Style
  • Contemporary
  • Modern
  • Prarie
Number of Rooms
  • Bedrooms:3
  • Full Baths:2
  • Half Baths:1
Garage
  • Garage Size:2
  • Garage Door Location:Front
Roof Pitches
  • Primary:4:12
Wall Heights
  • Main:9'-0"
  • Upper:9'-0"
Foundation Type
  • Crawl Space
Roof Framing
  • Trusses
Floor Load
  • Live (lbs):40 PSF
  • Dead (lbs):10 PSF
Roof Load
  • Live (lbs):25 PSF
  • Dead (lbs):15 PSF
  • Wind:85 MPH
Design Features
  • Bonus Space @ & Upper Floor
  • Den/Office
  • Great Room
  • Laundry Room @ & Upper Floor
  • Master Bedroom @ Upper Floor Rear
  • Contemporary Home Plans
  • Modern Home Plans
  • Prairie Home Plans
  • Small House Plans
  • View Lot (Rear) Plans
Please enter the zip code of your building site, then select the Go! button to view pricing information for this house plan.

Recent View

Front Rendering

Rosewood

M1905A2F-0
  • Total Area:1905 Sq. Ft.
  • Stories:2
  • Bedrooms:4
  • Full Baths:2
© 2023 Architects Northwest All Rights Reserved Powered By: Visualwebz