Plan Pricing

$0

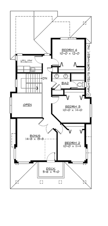
FERNDALE FALLS

M2395A3RD-0
  • Total Area:2395 Sq. Ft.
  • Garage Area:704 Sq Ft
  • Garage Size:3
  • Stories:2
  • Bedrooms:4
  • Full Baths:2
  • Half Baths:1
  • Width:26'-0"
  • Depth:62'-0"
  • Height:25'-0"
  • Foundation:Crawl Space
PLAN DETAILS FOR THE FERNDALE FALLS - PLAN M2395A3RD-0
Area Summary
  • Total Area:2395 Sq. Ft.
  • Main Floor:1402 Sq. Ft.
  • Upper Floor:993 Sq. Ft.
  • Garage Floor:704 Sq. Ft.
General Information
  • Stories:2
  • Width:26'-0"
  • Depth:62'-0"
  • Height:25'-0"
Architectural Style
  • Craftsman
  • Farmhouse
  • Shingle
Number of Rooms
  • Bedrooms:4
  • Full Baths:2
  • Half Baths:1
Garage
  • Garage Size:3
  • Garage Door Location:Rear
  • Garage Type: Detached
Roof Pitches
  • Primary:6:12
Wall Heights
  • Main:9'-0"
  • Upper:8'-0"
Foundation Type
  • Crawl Space
Roof Framing
  • Trusses
Floor Load
  • Live (lbs):40 PSF
  • Dead (lbs):10 PSF
Roof Load
  • Live (lbs):25 PSF
  • Dead (lbs):15 PSF
  • Wind:85 MPH
Design Features
  • Bonus Space @ & Upper Floor
  • Front Porch
  • Great Room
  • Laundry Room @ Main Floor
  • Master Bedroom @ Main Floor Rear
  • Craftsman House Plans
  • Farmhouse Home Plans
  • Shingle House Plans
  • Narrow Lot House Plans
Front Photo

Ferndale

M2505A3RD-0
  • Total Area:2505 Sq. Ft.
  • Stories:2
  • Bedrooms:3
  • Full Baths:2
Front Rendering

Ferndale Park

M2505A2FU-0DB
  • Total Area:3506 Sq. Ft.
  • Stories:3
  • Bedrooms:4
  • Full Baths:3
FRONT PHOTO

Ferndale Heights

M2505A2R-0
  • Total Area:2505 Sq. Ft.
  • Stories:2
  • Bedrooms:3
  • Full Baths:2
Front Rendering

Cloverdale

M2505B3RD-0
  • Total Area:2505 Sq. Ft.
  • Stories:2
  • Bedrooms:3
  • Full Baths:2
Front Rendering

Fern Crest

M2536A0-0
  • Total Area:2536 Sq. Ft.
  • Stories:2
  • Bedrooms:3
  • Full Baths:2
Front Rendering

Fernwood

M2830A3RD-0
  • Total Area:2830 Sq. Ft.
  • Stories:2
  • Bedrooms:3
  • Full Baths:2
Front Rendering

Cloverton

M2830B3RD-0
  • Total Area:2830 Sq. Ft.
  • Stories:2
  • Bedrooms:3
  • Full Baths:2
Front Photo

Ferndale Crest

M2505A4FT-0
  • Total Area:2602 Sq. Ft.
  • Stories:2
  • Bedrooms:3
  • Full Baths:2
Please enter the zip code of your building site, then select the Go! button to view pricing information for this house plan.

Recent View

© 2023 Architects Northwest All Rights Reserved Powered By: Visualwebz