Plan Pricing

$0

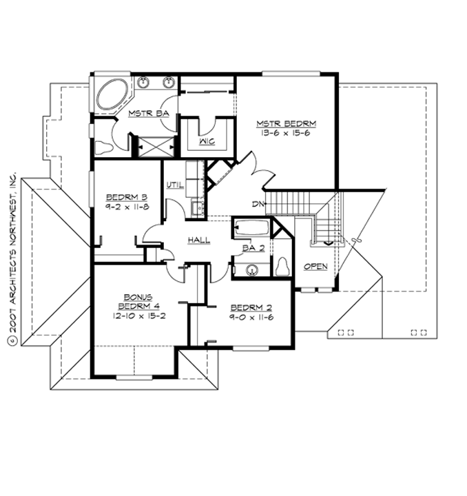
CANYON VIEW

M2400C2S-0
  • Total Area:2414 Sq. Ft.
  • Garage Area:599 Sq Ft
  • Garage Size:2
  • Stories:2
  • Bedrooms:3
  • Full Baths:2
  • Half Baths:1
  • Width:54'-0"
  • Depth:42'-0"
  • Height:28'-6"
  • Foundation:Crawl Space
PLAN DETAILS FOR THE CANYON VIEW - PLAN M2400C2S-0
Area Summary
  • Total Area:2414 Sq. Ft.
  • Main Floor:1222 Sq. Ft.
  • Upper Floor:1192 Sq. Ft.
  • Garage Floor:599 Sq. Ft.
General Information
  • Stories:2
  • Width:54'-0"
  • Depth:42'-0"
  • Height:28'-6"
Architectural Style
  • Northwest
  • Shingle
  • Traditional
Number of Rooms
  • Bedrooms:3
  • Full Baths:2
  • Half Baths:1
Garage
  • Garage Size:2
  • Garage Door Location:Side
Roof Pitches
  • Primary:8:12
Wall Heights
  • Main:9'-0"
  • Upper:8'-0"
Foundation Type
  • Crawl Space
Roof Framing
  • Combination
Floor Load
  • Live (lbs):40 PSF
  • Dead (lbs):10 PSF
Roof Load
  • Live (lbs):25 PSF
  • Dead (lbs):15 PSF
  • Wind:85 MPH
Design Features
  • Green Plans
  • Bonus Space @ & Upper Floor
  • Den/Office
  • Front Porch
  • Great Room
  • Laundry Room @ & Upper Floor
  • Master Bedroom @ Upper Floor Rear
  • Northwest Floor Plans
  • Shingle House Plans
  • Traditional House Plans
  • View Lot (Rear) Plans
Front Photo

Kettle Falls

M2250A2F-0
  • Total Area:2250 Sq. Ft.
  • Stories:2
  • Bedrooms:3
  • Full Baths:2
Front Rendering

Kettle Canyon

M2250A2S-0
  • Total Area:2250 Sq. Ft.
  • Stories:2
  • Bedrooms:3
  • Full Baths:2
Front Rendering

Kettle Creek

M2250A3F-0
  • Total Area:2250 Sq. Ft.
  • Stories:2
  • Bedrooms:3
  • Full Baths:2
Front Photo

Kelso

M2400A2F-0
  • Total Area:2400 Sq. Ft.
  • Stories:2
  • Bedrooms:3
  • Full Baths:2
Front Rendering

Kelso Creek

M2400A2S-0
  • Total Area:2407 Sq. Ft.
  • Stories:2
  • Bedrooms:3
  • Full Baths:2
Front Rendering

Kelso Crest

M2400A3F-0
  • Total Area:2400 Sq. Ft.
  • Stories:2
  • Bedrooms:3
  • Full Baths:2
Front Rendering

Canyon Creek Park

M2400C2F-0
  • Total Area:2420 Sq. Ft.
  • Stories:2
  • Bedrooms:3
  • Full Baths:2
Front Photo

Canyon Creek

M2400C3F-0
  • Total Area:2420 Sq. Ft.
  • Stories:2
  • Bedrooms:3
  • Full Baths:2
Please enter the zip code of your building site, then select the Go! button to view pricing information for this house plan.

Recent View

Front Photo

Thornton

M3351A3FT-0
  • Total Area:3349 Sq. Ft.
  • Stories:2
  • Bedrooms:4
  • Full Baths:3
Front Rendering

Greenecraft

M3560A3S-0
  • Total Area:3560 Sq. Ft.
  • Stories:0
  • Bedrooms:3
  • Full Baths:3
Front Rendering

Hudson

M2427A3S-0
  • Total Area:2427 Sq. Ft.
  • Stories:2
  • Bedrooms:3
  • Full Baths:2
Front Rendering

Mayville

S1605A2F-0
  • Total Area:1605 Sq. Ft.
  • Stories:2
  • Bedrooms:4
  • Full Baths:3
Front Rendering

Trailsdale

M4020B3FT-5
  • Total Area:4115 Sq. Ft.
  • Stories:2
  • Bedrooms:4
  • Full Baths:3
Front Rendering

Stansbury

M2426A2F-0
  • Total Area:2426 Sq. Ft.
  • Stories:2
  • Bedrooms:3
  • Full Baths:4
Front Elevation

Stonington

M4061A4ST-0DB
  • Total Area:5450 Sq. Ft.
  • Stories:3
  • Bedrooms:5
  • Full Baths:5
Front Photo

Arden Park

M2377A2F-0DB
  • Total Area:3281 Sq. Ft.
  • Stories:3
  • Bedrooms:4
  • Full Baths:3
© 2023 Architects Northwest All Rights Reserved Powered By: Visualwebz