Plan Pricing

$0

MIDLAND

M2445A2F-0
  • Total Area:2465 Sq. Ft.
  • Garage Area:440 Sq Ft
  • Garage Size:2
  • Stories:2
  • Bedrooms:3
  • Full Baths:2
  • Half Baths:1
  • Width:50'-0"
  • Depth:40'-0"
  • Height:25'-0"
  • Foundation:Crawl Space
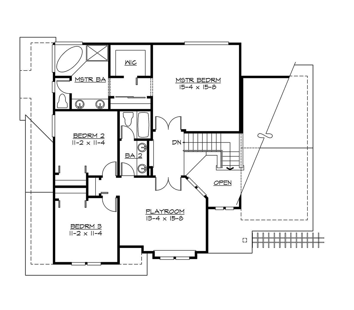
PLAN DETAILS FOR THE MIDLAND - PLAN M2445A2F-0
Area Summary
  • Total Area:2465 Sq. Ft.
  • Main Floor:1317 Sq. Ft.
  • Upper Floor:1148 Sq. Ft.
  • Garage Floor:440 Sq. Ft.
General Information
  • Stories:2
  • Width:50'-0"
  • Depth:40'-0"
  • Height:25'-0"
Architectural Style
  • Craftsman
  • Northwest
  • Traditional
Number of Rooms
  • Bedrooms:3
  • Full Baths:2
  • Half Baths:1
Garage
  • Garage Size:2
  • Garage Door Location:Front
Roof Pitches
  • Primary:6:12
Wall Heights
  • Main:8'-0"
  • Upper:8'-0"
Foundation Type
  • Crawl Space
Roof Framing
  • Combination
Floor Load
  • Live (lbs):40 PSF
  • Dead (lbs):10 PSF
Roof Load
  • Live (lbs):25 PSF
  • Dead (lbs):15 PSF
  • Wind:85 MPH
Design Features
  • Bonus Space @ & Upper Floor
  • Den/Office
  • Great Room
  • Laundry Room @ Main Floor
  • Master Bedroom @ Upper Floor Rear
  • Craftsman House Plans
  • Northwest Floor Plans
  • Traditional House Plans
  • Narrow Lot House Plans
  • Small House Plans
Front Photo

Midland Meadows

M2445A3F-0
  • Total Area:2465 Sq. Ft.
  • Stories:2
  • Bedrooms:3
  • Full Baths:2
Front Rendering

Middleton

M2720A3F-0
  • Total Area:2720 Sq. Ft.
  • Stories:2
  • Bedrooms:3
  • Full Baths:2
Front Rendering

Middleton Heights

M2720A3F-0DB
  • Total Area:4200 Sq. Ft.
  • Stories:3
  • Bedrooms:4
  • Full Baths:3
Please enter the zip code of your building site, then select the Go! button to view pricing information for this house plan.

Recent View

© 2023 Architects Northwest All Rights Reserved Powered By: Visualwebz