Plan Pricing

$0

HATTERAS PARK CREST

M2510A3F-0DB
  • Total Area:3420 Sq. Ft.
  • Garage Area:630 Sq Ft
  • Garage Size:3
  • Stories:3
  • Bedrooms:5
  • Full Baths:3
  • Half Baths:1
  • Width:42'-0"
  • Depth:60'-0"
  • Height:27'-6"
  • Foundation:Basement
PLAN DETAILS FOR THE HATTERAS PARK CREST - PLAN M2510A3F-0DB
Area Summary
  • Total Area:3420 Sq. Ft.
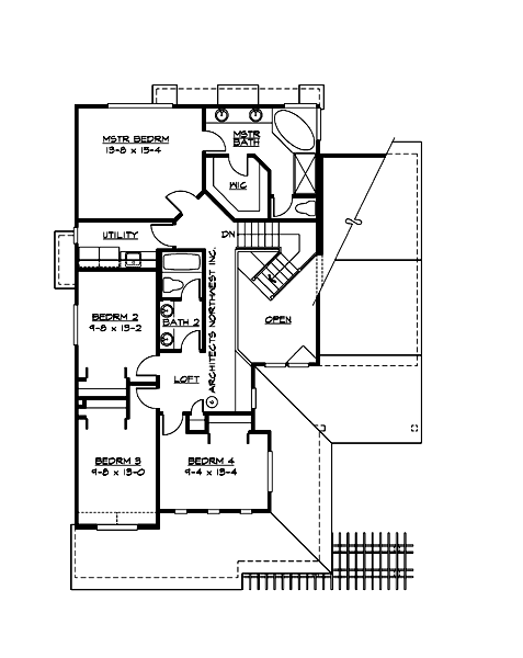
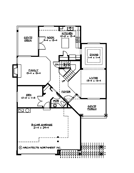
  • Main Floor:1295 Sq. Ft.
  • Upper Floor:1215 Sq. Ft.
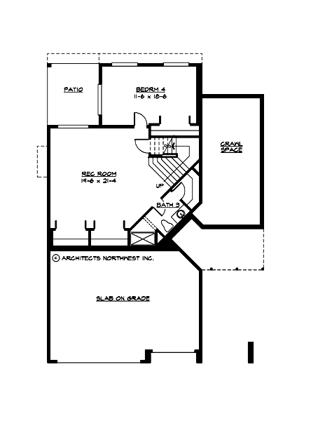
  • Lower Floor:910 Sq. Ft.
  • Garage Floor:630 Sq. Ft.
General Information
  • Stories:3
  • Width:42'-0"
  • Depth:60'-0"
  • Height:27'-6"
Architectural Style
  • Craftsman
  • Northwest
  • Traditional
Number of Rooms
  • Bedrooms:5
  • Full Baths:3
  • Half Baths:1
Garage
  • Garage Size:3
  • Garage Door Location:Front
Roof Pitches
  • Primary:8:12
  • Secondary:4:12
Wall Heights
  • Main:8'-0"
  • Upper:8'-0"
  • Lower:8'-0"
Foundation Type
  • Daylight Basement
Roof Framing
  • Trusses
Floor Load
  • Live (lbs):40 PSF
  • Dead (lbs):10 PSF
Roof Load
  • Live (lbs):25 PSF
  • Dead (lbs):15 PSF
  • Wind:85 MPH
Design Features
  • Bonus Space @ & Lower Floor
  • Den/Office
  • Front Porch
  • Great Room
  • Laundry Room @ & Upper Floor
  • Master Bedroom @ Upper Floor Rear
  • Craftsman House Plans
  • Northwest Floor Plans
  • Traditional House Plans
  • Narrow Lot House Plans
Front Photo

Hatteras Crest

M2415A3F-0DB
  • Total Area:3261 Sq. Ft.
  • Stories:3
  • Bedrooms:5
  • Full Baths:3
Front Rendering

Aspen Meadow Park

M2780A3FT-13DB
  • Total Area:4369 Sq. Ft.
  • Stories:3
  • Bedrooms:3
  • Full Baths:3
Front Rendering

Willow Park Ridge

M2780B3F-13DB
  • Total Area:4582 Sq. Ft.
  • Stories:3
  • Bedrooms:5
  • Full Baths:3
Front Rendering

Willow Lane Ridge

M2780B3F-15DB
  • Total Area:4582 Sq. Ft.
  • Stories:3
  • Bedrooms:5
  • Full Baths:3
Please enter the zip code of your building site, then select the Go! button to view pricing information for this house plan.

Recent View

© 2023 Architects Northwest All Rights Reserved Powered By: Visualwebz