Plan Pricing

$0

HADLEY PARK

M2520B3FT-0DB
  • Total Area:3327 Sq. Ft.
  • Garage Area:552 Sq Ft
  • Garage Size:3
  • Stories:3
  • Bedrooms:4
  • Full Baths:3
  • Half Baths:1
  • Width:40'-0"
  • Depth:52'-0"
  • Height:31'-0"
  • Foundation:Basement
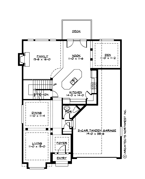
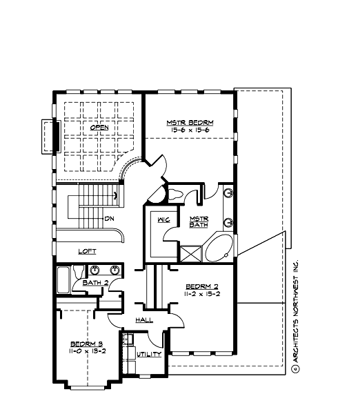
PLAN DETAILS FOR THE HADLEY PARK - PLAN M2520B3FT-0DB
Area Summary
  • Total Area:3327 Sq. Ft.
  • Main Floor:1380 Sq. Ft.
  • Upper Floor:1252 Sq. Ft.
  • Lower Floor:695 Sq. Ft.
  • Garage Floor:552 Sq. Ft.
General Information
  • Stories:3
  • Width:40'-0"
  • Depth:52'-0"
  • Height:31'-0"
Architectural Style
  • Craftsman
  • European
  • Tudor
Number of Rooms
  • Bedrooms:4
  • Full Baths:3
  • Half Baths:1
Garage
  • Garage Size:3
  • Garage Door Location:Front
  • Garage Type: Tandem
Roof Pitches
  • Primary:8:12
  • Secondary:12:12
Wall Heights
  • Main:9'-0"
  • Upper:8'-0"
  • Lower:9'-0"
Foundation Type
  • Daylight Basement
Roof Framing
  • Trusses
Floor Load
  • Live (lbs):40 PSF
  • Dead (lbs):10 PSF
Roof Load
  • Live (lbs):25 PSF
  • Dead (lbs):15 PSF
  • Wind:85 MPH
Design Features
  • Bonus Space @ & Lower Floor
  • Den/Office
  • Great Room
  • Laundry Room @ & Upper Floor
  • Master Bedroom @ Upper Floor Rear
  • Craftsman House Plans
  • European House Plans
  • Tudor House Plans
  • Narrow Lot House Plans
Front Exterior

Avalon

M2520A3FT-0
  • Total Area:2520 Sq. Ft.
  • Stories:2
  • Bedrooms:3
  • Full Baths:2
Front Photo

Avalon Crest

M2520A3FT-0DB
  • Total Area:3215 Sq. Ft.
  • Stories:3
  • Bedrooms:4
  • Full Baths:3
Front Exterior

Hadley

M2520B3FT-0
  • Total Area:2632 Sq. Ft.
  • Stories:2
  • Bedrooms:3
  • Full Baths:2
Front Exterior

Talus

M2520C3FT-0
  • Total Area:2673 Sq. Ft.
  • Stories:2
  • Bedrooms:3
  • Full Baths:2
Front Exterior

Talus Ridge

M2520C3FT-0DB
  • Total Area:3368 Sq. Ft.
  • Stories:3
  • Bedrooms:4
  • Full Baths:3
Please enter the zip code of your building site, then select the Go! button to view pricing information for this house plan.

Recent View

Front Rendering

Kendrick

M4057A3RD-0
  • Total Area:4057 Sq. Ft.
  • Stories:2
  • Bedrooms:4
  • Full Baths:4
Front Photo

Ferndale

M2505A3RD-0
  • Total Area:2505 Sq. Ft.
  • Stories:2
  • Bedrooms:3
  • Full Baths:2
Front Rendering

Chathambury

M4255A3S-0
  • Total Area:4350 Sq. Ft.
  • Stories:2
  • Bedrooms:4
  • Full Baths:3
Front Rendering

Hillsmanor

M4410B3FU-0DB
  • Total Area:4199 Sq. Ft.
  • Stories:3
  • Bedrooms:4
  • Full Baths:4
© 2023 Architects Northwest All Rights Reserved Powered By: Visualwebz