Plan Pricing

$0

DOGWOOD

M2567B2F-0
  • Total Area:2652 Sq. Ft.
  • Garage Area:387 Sq Ft
  • Garage Size:2
  • Stories:2
  • Bedrooms:4
  • Full Baths:3
  • Half Baths:1
  • Width:32'-0"
  • Depth:70'-0"
  • Height:26'-6"
  • Foundation:Crawl Space
PLAN DETAILS FOR THE DOGWOOD - PLAN M2567B2F-0
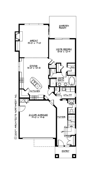
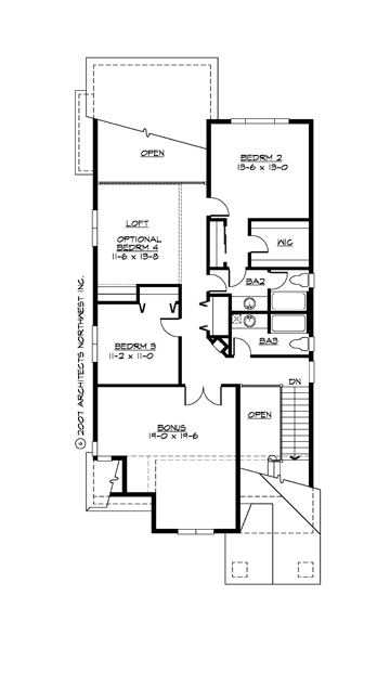
Area Summary
  • Total Area:2652 Sq. Ft.
  • Main Floor:1349 Sq. Ft.
  • Upper Floor:1303 Sq. Ft.
  • Garage Floor:387 Sq. Ft.
General Information
  • Stories:2
  • Width:32'-0"
  • Depth:70'-0"
  • Height:26'-6"
Architectural Style
  • Craftsman
  • Northwest
  • Shingle
Number of Rooms
  • Bedrooms:4
  • Full Baths:3
  • Half Baths:1
Garage
  • Garage Size:2
  • Garage Door Location:Front
Roof Pitches
  • Primary:12:12
  • Secondary:5:12
Wall Heights
  • Main:9'-0"
  • Upper:8'-0"
Foundation Type
  • Crawl Space
Roof Framing
  • Combination
Floor Load
  • Live (lbs):40 PSF
  • Dead (lbs):10 PSF
Roof Load
  • Live (lbs):25 PSF
  • Dead (lbs):15 PSF
  • Wind:85 MPH
Design Features
  • Green Plans
  • Bonus Space @ & Upper Floor
  • Rear Porch
  • Great Room
  • Laundry Room @ Main Floor
  • Master Bedroom @ Main Floor Rear
  • Craftsman House Plans
  • Northwest Floor Plans
  • Shingle House Plans
  • Narrow Lot House Plans
  • Small House Plans
Front Photo

Elmwood

M2567A2F-0
  • Total Area:2567 Sq. Ft.
  • Stories:2
  • Bedrooms:4
  • Full Baths:3
Please enter the zip code of your building site, then select the Go! button to view pricing information for this house plan.

Recent View

© 2023 Architects Northwest All Rights Reserved Powered By: Visualwebz