Plan Pricing

$0

HARBOR POINTE RIDGE

M2645A3F-0DB
  • Total Area:3780 Sq. Ft.
  • Garage Area:744 Sq Ft
  • Garage Size:3
  • Stories:3
  • Bedrooms:5
  • Full Baths:3
  • Half Baths:1
  • Width:62'-0"
  • Depth:44'-0"
  • Height:29'-6"
  • Foundation:Basement
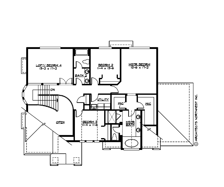
PLAN DETAILS FOR THE HARBOR POINTE RIDGE - PLAN M2645A3F-0DB
Area Summary
  • Total Area:3780 Sq. Ft.
  • Main Floor:1411 Sq. Ft.
  • Upper Floor:1447 Sq. Ft.
  • Lower Floor:922 Sq. Ft.
  • Garage Floor:744 Sq. Ft.
General Information
  • Stories:3
  • Width:62'-0"
  • Depth:44'-0"
  • Height:29'-6"
Architectural Style
  • Hampton
  • Shingle
  • Traditional
Number of Rooms
  • Bedrooms:5
  • Full Baths:3
  • Half Baths:1
Garage
  • Garage Size:3
  • Garage Door Location:Front
Roof Pitches
  • Primary:8:12
  • Secondary:12:12
Wall Heights
  • Main:9'-0"
  • Upper:8'-0"
  • Lower:9'-0"
Foundation Type
  • Daylight Basement
Roof Framing
  • Combination
Floor Load
  • Live (lbs):40 PSF
  • Dead (lbs):10 PSF
Roof Load
  • Live (lbs):25 PSF
  • Dead (lbs):15 PSF
  • Wind:85 MPH
Design Features
  • Bonus Space @ , Upper & Lower Floor
  • Great Room
  • Laundry Room @ & Upper Floor
  • Master Bedroom @ Upper Floor Rear
  • Hampton House Plans
  • Shingle House Plans
  • Traditional House Plans
  • View Lot (Rear) Plans
Front Photo

Harbor Bay Ridge

M2645A3FT-0DB
  • Total Area:3395 Sq. Ft.
  • Stories:3
  • Bedrooms:5
  • Full Baths:3
Front Rendering

Harbor Crest Ridge

M2645A3FT-2DB
  • Total Area:3395 Sq. Ft.
  • Stories:3
  • Bedrooms:5
  • Full Baths:3
Front Exterior

Country Charm Lane

M2645B3F-0DB
  • Total Area:3440 Sq. Ft.
  • Stories:3
  • Bedrooms:5
  • Full Baths:3
Front Rendering

Countryside Lane

M2645B3FT-0DB
  • Total Area:3320 Sq. Ft.
  • Stories:3
  • Bedrooms:5
  • Full Baths:3
Front Rendering

Harbor Heights Ridge

M3265A3F-0DB
  • Total Area:4503 Sq. Ft.
  • Stories:3
  • Bedrooms:5
  • Full Baths:5
Please enter the zip code of your building site, then select the Go! button to view pricing information for this house plan.

Recent View

Front Photo

Carissa

M3615A2F-0
  • Total Area:3615 Sq. Ft.
  • Stories:2
  • Bedrooms:5
  • Full Baths:4
Front Rendering

Harbor Crest Ridge

M2645A3FT-2DB
  • Total Area:3395 Sq. Ft.
  • Stories:3
  • Bedrooms:5
  • Full Baths:3
Front Rendering

Laurelcrest

M2980A3S-1
  • Total Area:3009 Sq. Ft.
  • Stories:2
  • Bedrooms:4
  • Full Baths:2
Front Rendering

Marroneto

M5240A3S-0DB
  • Total Area:7814 Sq. Ft.
  • Stories:3
  • Bedrooms:5
  • Full Baths:6
Front Photo

Shasta

M2790B3S-1
  • Total Area:3178 Sq. Ft.
  • Stories:2
  • Bedrooms:4
  • Full Baths:4
Front Rendering

Roxbury Lane

M1871A2F-0DB
  • Total Area:2921 Sq. Ft.
  • Stories:3
  • Bedrooms:5
  • Full Baths:3
Front Rendering

Kaelynn

M3671A3S-0
  • Total Area:3671 Sq. Ft.
  • Stories:2
  • Bedrooms:4
  • Full Baths:3
Front Exterior

Harbor Heights

M3265A3F-0
  • Total Area:3265 Sq. Ft.
  • Stories:2
  • Bedrooms:3
  • Full Baths:3
© 2023 Architects Northwest All Rights Reserved Powered By: Visualwebz