Plan Pricing

$0

TOUCHSTONE

M2675A3SU-0
  • Total Area:2675 Sq. Ft.
  • Garage Area:845 Sq Ft
  • Garage Size:3
  • Stories:3
  • Bedrooms:3
  • Full Baths:2
  • Half Baths:1
  • Width:50'-0"
  • Depth:36'-0"
  • Height:23'-6"
  • Foundation:Crawl Space
PLAN DETAILS FOR THE TOUCHSTONE - PLAN M2675A3SU-0
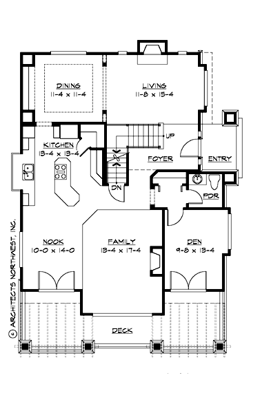
Area Summary
  • Total Area:2675 Sq. Ft.
  • Main Floor:1334 Sq. Ft.
  • Upper Floor:1216 Sq. Ft.
  • Lower Floor:125 Sq. Ft.
  • Garage Floor:845 Sq. Ft.
General Information
  • Stories:3
  • Width:50'-0"
  • Depth:36'-0"
  • Height:23'-6"
Architectural Style
  • Craftsman
  • Lodge
  • Shingle
Number of Rooms
  • Bedrooms:3
  • Full Baths:2
  • Half Baths:1
Garage
  • Garage Size:3
  • Garage Door Location:Side
  • Garage Type: Under
Roof Pitches
  • Primary:6:12
  • Secondary:4:12
Wall Heights
  • Main:9'-0"
  • Upper:8'-0"
  • Lower:9'-0"
Foundation Type
  • Crawl Space
Roof Framing
  • Trusses
Floor Load
  • Live (lbs):40 PSF
  • Dead (lbs):10 PSF
Roof Load
  • Live (lbs):25 PSF
  • Dead (lbs):15 PSF
  • Wind:85 MPH
Design Features
  • Best Selling Plans
  • Bonus Space @ & Upper Floor
  • Den/Office
  • Great Room
  • Laundry Room @ & Upper Floor
  • Master Bedroom @ Upper Floor Front
  • Craftsman House Plans
  • Lodge House Plans
  • Shingle House Plans
  • Narrow Lot House Plans
Side Photo

Touchstone Crest

M2675A3SU-1
  • Total Area:3035 Sq. Ft.
  • Stories:3
  • Bedrooms:3
  • Full Baths:2
Front Exterior

Blackcomb

M3375A3SU-0
  • Total Area:3375 Sq. Ft.
  • Stories:3
  • Bedrooms:3
  • Full Baths:2
Front Photo

Buckland

M3948A3FU-1DB
  • Total Area:3946 Sq. Ft.
  • Stories:3
  • Bedrooms:4
  • Full Baths:3
Please enter the zip code of your building site, then select the Go! button to view pricing information for this house plan.

Recent View

© 2023 Architects Northwest All Rights Reserved Powered By: Visualwebz