Plan Pricing

$0

REDWOOD

M2738A2F-0
  • Total Area:2738 Sq. Ft.
  • Garage Area:427 Sq Ft
  • Garage Size:2
  • Stories:2
  • Bedrooms:4
  • Full Baths:2
  • Half Baths:1
  • Width:40'-0"
  • Depth:42'-0"
  • Height:27'-0"
  • Foundation:Crawl Space
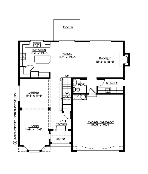
PLAN DETAILS FOR THE REDWOOD - PLAN M2738A2F-0
Area Summary
  • Total Area:2738 Sq. Ft.
  • Main Floor:1180 Sq. Ft.
  • Upper Floor:1558 Sq. Ft.
  • Garage Floor:427 Sq. Ft.
General Information
  • Stories:2
  • Width:40'-0"
  • Depth:42'-0"
  • Height:27'-0"
Architectural Style
  • Hampton
  • Shingle
  • Traditional
Number of Rooms
  • Bedrooms:4
  • Full Baths:2
  • Half Baths:1
Garage
  • Garage Size:2
  • Garage Door Location:Front
Roof Pitches
  • Primary:8:12
  • Secondary:6:12
Wall Heights
  • Main:9'-0"
  • Upper:8'-0"
Foundation Type
  • Crawl Space
Roof Framing
  • Trusses
Floor Load
  • Live (lbs):40 PSF
  • Dead (lbs):10 PSF
Roof Load
  • Live (lbs):25 PSF
  • Dead (lbs):15 PSF
  • Wind:85 MPH
Design Features
  • Bonus Space @ & Upper Floor
  • Great Room
  • Laundry Room @ Main Floor
  • Master Bedroom @ Upper Floor Front
  • Hampton House Plans
  • Shingle House Plans
  • Traditional House Plans
  • Narrow Lot House Plans
  • Small House Plans
Front Rendering

Greenwood Park

M2590A2F-0
  • Total Area:2590 Sq. Ft.
  • Stories:2
  • Bedrooms:4
  • Full Baths:2
Front Rendering

Greenwood Park Crest

M2590A2F-0DB
  • Total Area:3716 Sq. Ft.
  • Stories:3
  • Bedrooms:5
  • Full Baths:3
Front Photo

Greenwood Lane

M2590C2F-0
  • Total Area:2590 Sq. Ft.
  • Stories:2
  • Bedrooms:4
  • Full Baths:2
Front of House

Greenwood

M2590D2F-0
  • Total Area:2651 Sq. Ft.
  • Stories:2
  • Bedrooms:4
  • Full Baths:2
Front Rendering

Glenwood Glen

M2590B2F-0
  • Total Area:2590 Sq. Ft.
  • Stories:2
  • Bedrooms:4
  • Full Baths:2
Front Photo

Greenwood Peak

M2590D2F-7
  • Total Area:3043 Sq. Ft.
  • Stories:2
  • Bedrooms:4
  • Full Baths:2
Please enter the zip code of your building site, then select the Go! button to view pricing information for this house plan.

Recent View

© 2023 Architects Northwest All Rights Reserved Powered By: Visualwebz