Plan Pricing

$0

SYCAMORE HEIGHTS

M2780A3F-13
  • Total Area:3100 Sq. Ft.
  • Garage Area:728 Sq Ft
  • Garage Size:3
  • Stories:2
  • Bedrooms:4
  • Full Baths:2
  • Half Baths:1
  • Width:42'-0"
  • Depth:65'-0"
  • Height:28'-6"
  • Foundation:Crawl Space
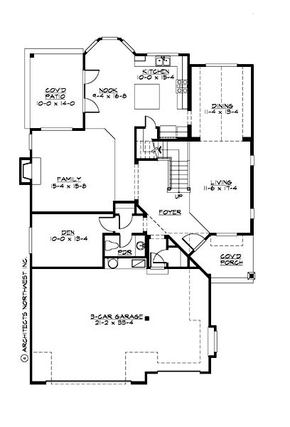
PLAN DETAILS FOR THE SYCAMORE HEIGHTS - PLAN M2780A3F-13
Area Summary
  • Total Area:3100 Sq. Ft.
  • Main Floor:1466 Sq. Ft.
  • Upper Floor:1634 Sq. Ft.
  • Garage Floor:728 Sq. Ft.
General Information
  • Stories:2
  • Width:42'-0"
  • Depth:65'-0"
  • Height:28'-6"
Architectural Style
  • Cape Cod
  • Hampton
  • Shingle
Number of Rooms
  • Bedrooms:4
  • Full Baths:2
  • Half Baths:1
Garage
  • Garage Size:3
  • Garage Door Location:Front
Roof Pitches
  • Primary:8:12
  • Secondary:4:12
Wall Heights
  • Main:9'-0"
  • Upper:8'-0"
Foundation Type
  • Crawl Space
Roof Framing
  • Trusses
Floor Load
  • Live (lbs):40 PSF
  • Dead (lbs):10 PSF
Roof Load
  • Live (lbs):25 PSF
  • Dead (lbs):15 PSF
  • Wind:85 MPH
Design Features
  • Bonus Space @ & Upper Floor
  • Den/Office
  • Front Porch
  • Great Room
  • Laundry Room @ & Upper Floor
  • Master Bedroom @ Upper Floor Rear
  • Cape Cod House Plans
  • Hampton House Plans
  • Shingle House Plans
  • Narrow Lot House Plans
  • Small House Plans
Front Photo

Hatteras

M2415A3F-0
  • Total Area:2415 Sq. Ft.
  • Stories:2
  • Bedrooms:4
  • Full Baths:2
Front Rendering

Hatteras Lane

M2765A3F-0
  • Total Area:2765 Sq. Ft.
  • Stories:2
  • Bedrooms:4
  • Full Baths:2
Front Photo

Sycamore

M2780A3F-0
  • Total Area:2780 Sq. Ft.
  • Stories:2
  • Bedrooms:4
  • Full Baths:2
Front Rendering

Aspen

M2780A3FT-0
  • Total Area:2805 Sq. Ft.
  • Stories:2
  • Bedrooms:3
  • Full Baths:2
Front Rendering

Aspen Meadow

M2780A3FT-13
  • Total Area:3181 Sq. Ft.
  • Stories:2
  • Bedrooms:3
  • Full Baths:2
Front Rendering

Willow

M2780B3F-0
  • Total Area:2805 Sq. Ft.
  • Stories:2
  • Bedrooms:4
  • Full Baths:2
Front Rendering

Willow Park

M2780B3F-13
  • Total Area:3117 Sq. Ft.
  • Stories:2
  • Bedrooms:4
  • Full Baths:2
Front Photo

Maple

M2780B3FT-0
  • Total Area:2805 Sq. Ft.
  • Stories:2
  • Bedrooms:3
  • Full Baths:2
Front Photo

Maple Heights

M2780B3FT-13
  • Total Area:3218 Sq. Ft.
  • Stories:2
  • Bedrooms:3
  • Full Baths:2
Front Photo

Viola

M3415A3FT-0
  • Total Area:3415 Sq. Ft.
  • Stories:2
  • Bedrooms:4
  • Full Baths:2
Please enter the zip code of your building site, then select the Go! button to view pricing information for this house plan.

Recent View

Front Photo

Northampton Park

M4168C3SD-1
  • Total Area:4239 Sq. Ft.
  • Stories:2
  • Bedrooms:5
  • Full Baths:4
Front Rendering

Brier Hill Heights

M3700D3FT-0DB
  • Total Area:4410 Sq. Ft.
  • Stories:4
  • Bedrooms:5
  • Full Baths:3
© 2023 Architects Northwest All Rights Reserved Powered By: Visualwebz