Plan Pricing

$0

AVONDALE RIDGE

M2785A3S-0DB
  • Total Area:3915 Sq. Ft.
  • Garage Area:735 Sq Ft
  • Garage Size:3
  • Stories:3
  • Bedrooms:5
  • Full Baths:3
  • Half Baths:1
  • Width:54'-0"
  • Depth:76'-0"
  • Height:26'-6"
  • Foundation:Basement
PLAN DETAILS FOR THE AVONDALE RIDGE - PLAN M2785A3S-0DB
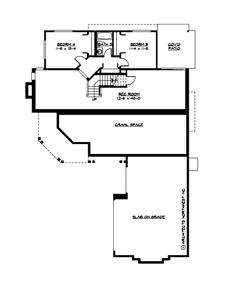
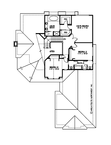
Area Summary
  • Total Area:3915 Sq. Ft.
  • Main Floor:1709 Sq. Ft.
  • Upper Floor:1076 Sq. Ft.
  • Lower Floor:1130 Sq. Ft.
  • Garage Floor:735 Sq. Ft.
General Information
  • Stories:3
  • Width:54'-0"
  • Depth:76'-0"
  • Height:26'-6"
Architectural Style
  • Craftsman
  • Farmhouse
  • Northwest
Number of Rooms
  • Bedrooms:5
  • Full Baths:3
  • Half Baths:1
Garage
  • Garage Size:3
  • Garage Door Location:Side
Roof Pitches
  • Primary:6:12
Wall Heights
  • Main:9'-0"
  • Upper:8'-0"
  • Lower:9'-0"
Foundation Type
  • Daylight Basement
Roof Framing
  • Trusses
Floor Load
  • Live (lbs):40 PSF
  • Dead (lbs):10 PSF
Roof Load
  • Live (lbs):25 PSF
  • Dead (lbs):15 PSF
  • Wind:85 MPH
Design Features
  • Bonus Space @ & Lower Floor
  • Den/Office
  • Front Porch
  • Great Room
  • Laundry Room @ Main Floor
  • Master Bedroom @ Upper Floor Rear
  • Craftsman House Plans
  • Farmhouse Home Plans
  • Northwest Floor Plans
  • Narrow Lot House Plans
Front Rendering

Avondale

M2785A3S-0
  • Total Area:2785 Sq. Ft.
  • Stories:2
  • Bedrooms:3
  • Full Baths:2
Front of House

Avondale Park

M3105A3S-0
  • Total Area:3105 Sq. Ft.
  • Stories:2
  • Bedrooms:3
  • Full Baths:2
Front of House

Avondale Park Heights

M3105A3S-0DB
  • Total Area:4235 Sq. Ft.
  • Stories:3
  • Bedrooms:5
  • Full Baths:3
Front Photo

Avondale Valley

M3510A3S-0
  • Total Area:3510 Sq. Ft.
  • Stories:2
  • Bedrooms:4
  • Full Baths:2
Front Rendering

Avondale Valley Park

M3510A3S-0DB
  • Total Area:4640 Sq. Ft.
  • Stories:3
  • Bedrooms:6
  • Full Baths:3
Front Photo

Brackendale

M4450A3S-0
  • Total Area:4450 Sq. Ft.
  • Stories:2
  • Bedrooms:4
  • Full Baths:3
Front Photo

Springhaven

M4450B3S-0
  • Total Area:4810 Sq. Ft.
  • Stories:2
  • Bedrooms:4
  • Full Baths:5
Please enter the zip code of your building site, then select the Go! button to view pricing information for this house plan.

Recent View

© 2023 Architects Northwest All Rights Reserved Powered By: Visualwebz