Plan Pricing

$0

SUNNYSIDE LANE

M2855A3S-0DB
  • Total Area:3645 Sq. Ft.
  • Garage Area:680 Sq Ft
  • Garage Size:3
  • Stories:3
  • Bedrooms:4
  • Full Baths:4
  • Width:62'-0"
  • Depth:58'-0"
  • Height:25'-0"
  • Foundation:Basement
PLAN DETAILS FOR THE SUNNYSIDE LANE - PLAN M2855A3S-0DB
Area Summary
  • Total Area:3645 Sq. Ft.
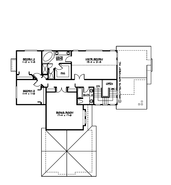
  • Main Floor:1500 Sq. Ft.
  • Upper Floor:1355 Sq. Ft.
  • Lower Floor:790 Sq. Ft.
  • Garage Floor:680 Sq. Ft.
General Information
  • Stories:3
  • Width:62'-0"
  • Depth:58'-0"
  • Height:25'-0"
Architectural Style
  • Craftsman
  • Northwest
  • Shingle
Number of Rooms
  • Bedrooms:4
  • Full Baths:4
Garage
  • Garage Size:3
  • Garage Door Location:Side
Roof Pitches
  • Primary:6:12
Wall Heights
  • Main:9'-0"
  • Upper:8'-0"
  • Lower:9'-0"
Foundation Type
  • Daylight Basement
Roof Framing
  • Trusses
Floor Load
  • Live (lbs):40 PSF
  • Dead (lbs):10 PSF
Roof Load
  • Live (lbs):25 PSF
  • Dead (lbs):15 PSF
  • Wind:85 MPH
Design Features
  • Bonus Space @ , Upper & Lower Floor
  • Den/Office
  • Front Porch
  • Great Room
  • Laundry Room @ Main Floor
  • Master Bedroom @ Upper Floor Rear
  • Craftsman House Plans
  • Northwest Floor Plans
  • Shingle House Plans
Front Rendering

Sunnyside

M2855A3S-0
  • Total Area:2855 Sq. Ft.
  • Stories:2
  • Bedrooms:3
  • Full Baths:3
Please enter the zip code of your building site, then select the Go! button to view pricing information for this house plan.

Recent View

© 2023 Architects Northwest All Rights Reserved Powered By: Visualwebz