Plan Pricing

$0

LAKE HILLS

M2951C2RS-0
  • Total Area:2951 Sq. Ft.
  • Garage Area:460 Sq Ft
  • Garage Size:2
  • Stories:2
  • Bedrooms:4
  • Full Baths:2
  • Half Baths:1
  • Width:28'-0"
  • Depth:73'-0"
  • Height:27'-6"
  • Foundation:Crawl Space
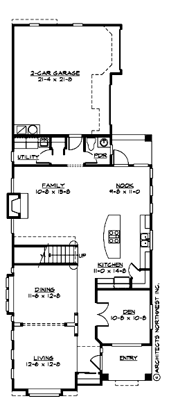
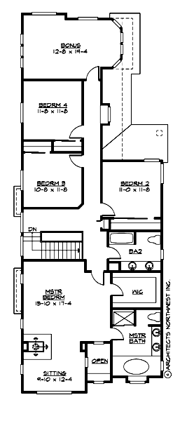
PLAN DETAILS FOR THE LAKE HILLS - PLAN M2951C2RS-0
Area Summary
  • Total Area:2951 Sq. Ft.
  • Main Floor:1300 Sq. Ft.
  • Upper Floor:1651 Sq. Ft.
  • Garage Floor:460 Sq. Ft.
General Information
  • Stories:2
  • Width:28'-0"
  • Depth:73'-0"
  • Height:27'-6"
Architectural Style
  • Hampton
  • Shingle
  • Traditional
Number of Rooms
  • Bedrooms:4
  • Full Baths:2
  • Half Baths:1
Garage
  • Garage Size:2
  • Garage Door Location:Rear
Roof Pitches
  • Primary:8:12
  • Secondary:5:12
Wall Heights
  • Main:9'-0"
  • Upper:8'-0"
Foundation Type
  • Crawl Space
Roof Framing
  • Trusses
Floor Load
  • Live (lbs):40 PSF
  • Dead (lbs):10 PSF
Roof Load
  • Live (lbs):25 PSF
  • Dead (lbs):15 PSF
  • Wind:85 MPH
Design Features
  • Bonus Space @ & Upper Floor
  • Den/Office
  • Rear Porch
  • Great Room
  • Laundry Room @ Main Floor
  • Master Bedroom @ Upper Floor Front
  • Hampton House Plans
  • Shingle House Plans
  • Traditional House Plans
  • Narrow Lot House Plans
Front Rendering

Overlake

M3012A3RS-0
  • Total Area:3012 Sq. Ft.
  • Stories:2
  • Bedrooms:4
  • Full Baths:2
Front Photo

Overlake Hills

M3012C3RS-0
  • Total Area:3076 Sq. Ft.
  • Stories:2
  • Bedrooms:4
  • Full Baths:2
Front Phtoto

Overlake Woods

M3012D2R-0
  • Total Area:2825 Sq. Ft.
  • Stories:2
  • Bedrooms:4
  • Full Baths:2
Front Photo

Overlake Ridge

M3012D2RS-0
  • Total Area:2825 Sq. Ft.
  • Stories:2
  • Bedrooms:4
  • Full Baths:2
Front Photo

Overlake Meadows

M3012D3RS-0
  • Total Area:3012 Sq. Ft.
  • Stories:2
  • Bedrooms:4
  • Full Baths:2
Front Photo

Overlake Park

M3012B3RS-0
  • Total Area:3012 Sq. Ft.
  • Stories:2
  • Bedrooms:4
  • Full Baths:2
Please enter the zip code of your building site, then select the Go! button to view pricing information for this house plan.

Recent View

© 2023 Architects Northwest All Rights Reserved Powered By: Visualwebz