Plan Pricing

$0

BENNETT

M3049A3F-10
  • Total Area:3260 Sq. Ft.
  • Garage Area:656 Sq Ft
  • Garage Size:3
  • Stories:2
  • Bedrooms:4
  • Full Baths:2
  • Half Baths:1
  • Width:49'-0"
  • Depth:56'-0"
  • Height:28'-6"
  • Foundation:Crawl Space
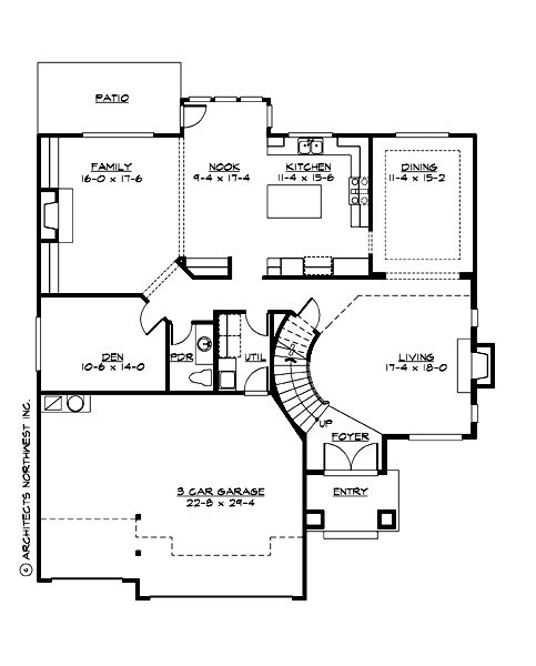
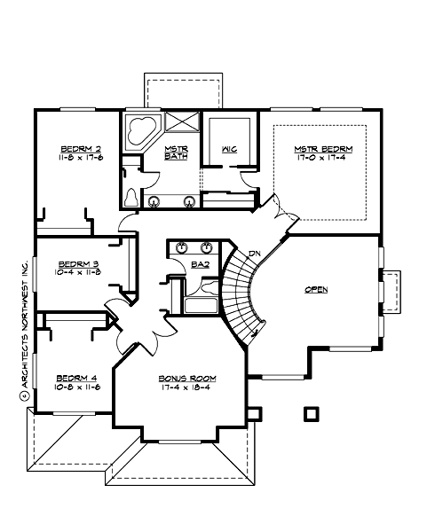
PLAN DETAILS FOR THE BENNETT - PLAN M3049A3F-10
Area Summary
  • Total Area:3260 Sq. Ft.
  • Main Floor:1590 Sq. Ft.
  • Upper Floor:1670 Sq. Ft.
  • Garage Floor:656 Sq. Ft.
General Information
  • Stories:2
  • Width:49'-0"
  • Depth:56'-0"
  • Height:28'-6"
Architectural Style
  • Craftsman
  • Northwest
  • Shingle
Number of Rooms
  • Bedrooms:4
  • Full Baths:2
  • Half Baths:1
Garage
  • Garage Size:3
  • Garage Door Location:Front
Roof Pitches
  • Primary:6:12
Wall Heights
  • Main:9'-0"
  • Upper:8'-0"
Foundation Type
  • Crawl Space
Roof Framing
  • Trusses
Floor Load
  • Live (lbs):40 PSF
  • Dead (lbs):10 PSF
Roof Load
  • Live (lbs):25 PSF
  • Dead (lbs):15 PSF
  • Wind:85 MPH
Design Features
  • Bonus Space @ & Upper Floor
  • Den/Office
  • Great Room
  • Laundry Room @ Main Floor
  • Master Bedroom @ Upper Floor Rear
  • Craftsman House Plans
  • Northwest Floor Plans
  • Shingle House Plans
  • Narrow Lot House Plans
  • View Lot (Rear) Plans
Front Photo

Bennett Lane

M3049A3F-0
  • Total Area:3049 Sq. Ft.
  • Stories:2
  • Bedrooms:4
  • Full Baths:2
Front Rendering

Bennett Park

M3049B3F-0
  • Total Area:3049 Sq. Ft.
  • Stories:2
  • Bedrooms:4
  • Full Baths:2
Please enter the zip code of your building site, then select the Go! button to view pricing information for this house plan.

Recent View

© 2023 Architects Northwest All Rights Reserved Powered By: Visualwebz