Plan Pricing

$0

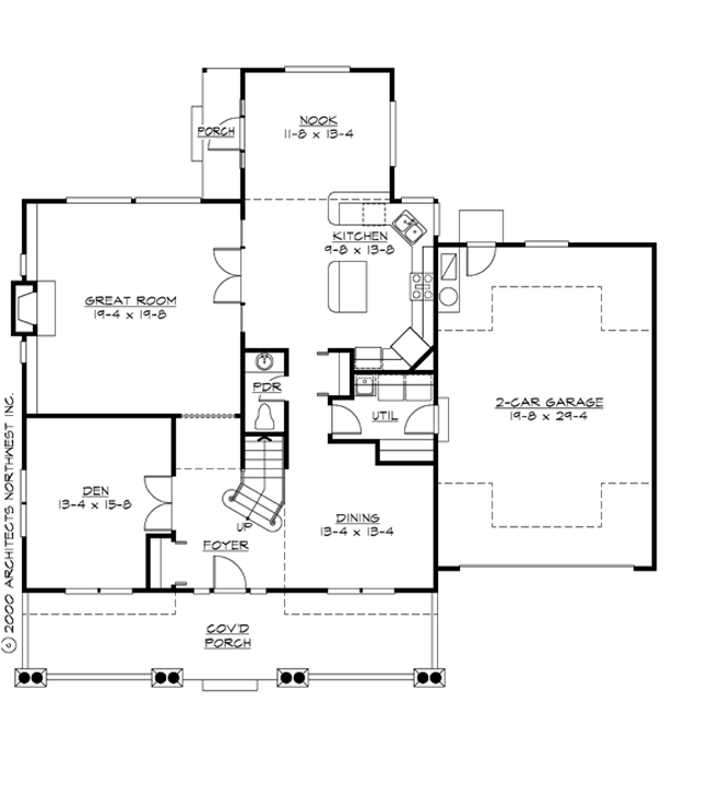
HIDDEN LAKE

M3180A2F-0
  • Total Area:3180 Sq. Ft.
  • Garage Area:600 Sq Ft
  • Garage Size:2
  • Stories:2
  • Bedrooms:4
  • Full Baths:2
  • Half Baths:1
  • Width:58'-0"
  • Depth:56'-0"
  • Height:26'-0"
  • Foundation:Crawl Space
PLAN DETAILS FOR THE HIDDEN LAKE - PLAN M3180A2F-0
Area Summary
  • Total Area:3180 Sq. Ft.
  • Main Floor:1536 Sq. Ft.
  • Upper Floor:1644 Sq. Ft.
  • Garage Floor:600 Sq. Ft.
General Information
  • Stories:2
  • Width:58'-0"
  • Depth:56'-0"
  • Height:26'-0"
Architectural Style
  • Craftsman
  • Farmhouse
  • Shingle
Number of Rooms
  • Bedrooms:4
  • Full Baths:2
  • Half Baths:1
Garage
  • Garage Size:2
  • Garage Door Location:Front
Roof Pitches
  • Primary:5:12
Wall Heights
  • Main:9'-0"
  • Upper:8'-0"
Foundation Type
  • Crawl Space
Roof Framing
  • Trusses
Floor Load
  • Live (lbs):40 PSF
  • Dead (lbs):10 PSF
Roof Load
  • Live (lbs):25 PSF
  • Dead (lbs):15 PSF
  • Wind:85 MPH
Design Features
  • Bonus Space @ & Upper Floor
  • Den/Office
  • Front Porch
  • Great Room
  • Laundry Room @ Main Floor
  • Master Bedroom @ Upper Floor Front
  • Craftsman House Plans
  • Farmhouse Home Plans
  • Shingle House Plans
  • View Lot (Rear) Plans
  • Wide Lot House Plans
Front Rendering

Hidden Pond

M3180A3S-0
  • Total Area:3180 Sq. Ft.
  • Stories:2
  • Bedrooms:4
  • Full Baths:2
Please enter the zip code of your building site, then select the Go! button to view pricing information for this house plan.

Recent View

Front Photo

Hollymont

M4204A3FT-0
  • Total Area:4204 Sq. Ft.
  • Stories:3
  • Bedrooms:4
  • Full Baths:5
© 2023 Architects Northwest All Rights Reserved Powered By: Visualwebz