Plan Pricing

$0

RAVENSWORTH HEIGHTS

M3225A3F-0DB
  • Total Area:4575 Sq. Ft.
  • Garage Area:830 Sq Ft
  • Garage Size:3
  • Stories:3
  • Bedrooms:6
  • Full Baths:3
  • Half Baths:1
  • Width:62'-0"
  • Depth:56'-0"
  • Height:27'-6"
  • Foundation:Basement
PLAN DETAILS FOR THE RAVENSWORTH HEIGHTS - PLAN M3225A3F-0DB
Area Summary
  • Total Area:4575 Sq. Ft.
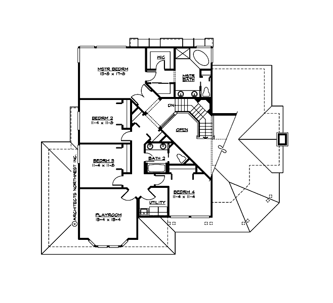
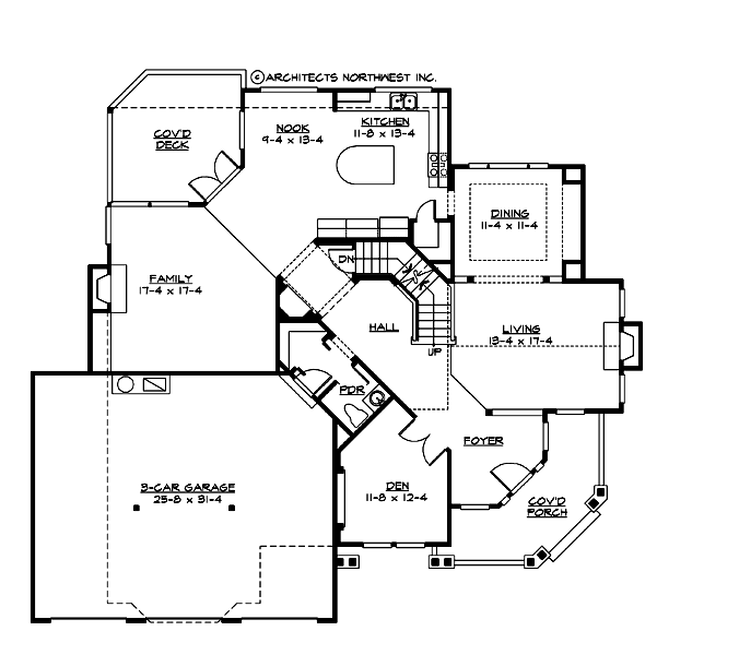
  • Main Floor:1650 Sq. Ft.
  • Upper Floor:1575 Sq. Ft.
  • Lower Floor:1350 Sq. Ft.
  • Garage Floor:830 Sq. Ft.
General Information
  • Stories:3
  • Width:62'-0"
  • Depth:56'-0"
  • Height:27'-6"
Architectural Style
  • Craftsman
  • Northwest
  • Shingle
Number of Rooms
  • Bedrooms:6
  • Full Baths:3
  • Half Baths:1
Garage
  • Garage Size:3
  • Garage Door Location:Front
Roof Pitches
  • Primary:6:12
Wall Heights
  • Main:9'-0"
  • Upper:8'-0"
  • Lower:9'-0"
Foundation Type
  • Daylight Basement
Roof Framing
  • Trusses
Floor Load
  • Live (lbs):40 PSF
  • Dead (lbs):10 PSF
Roof Load
  • Live (lbs):25 PSF
  • Dead (lbs):15 PSF
  • Wind:85 MPH
Design Features
  • Bonus Space @ , Upper & Lower Floor
  • Den/Office
  • Front Porch
  • Great Room
  • Laundry Room @ & Upper Floor
  • Master Bedroom @ Upper Floor Rear
  • Craftsman House Plans
  • Northwest Floor Plans
  • Shingle House Plans
  • Wide Lot House Plans
Front Rendering

Ravencrest

M2800A3F-0
  • Total Area:2800 Sq. Ft.
  • Stories:2
  • Bedrooms:3
  • Full Baths:2
Front Rendering

Ravencrest Park

M2800A3F-0DB
  • Total Area:4150 Sq. Ft.
  • Stories:3
  • Bedrooms:5
  • Full Baths:3
Front Photo

Ravendale

M3025A3F-0
  • Total Area:3025 Sq. Ft.
  • Stories:2
  • Bedrooms:3
  • Full Baths:2
Front Rendering

Ravendale Glen

M3025A3F-0DB
  • Total Area:4375 Sq. Ft.
  • Stories:3
  • Bedrooms:5
  • Full Baths:3
Front Photo

Ravensworth

M3225A3F-0
  • Total Area:3225 Sq. Ft.
  • Stories:2
  • Bedrooms:4
  • Full Baths:2
Front Exterior

Roseworth

M4430A3F-0
  • Total Area:4430 Sq. Ft.
  • Stories:2
  • Bedrooms:4
  • Full Baths:3
Please enter the zip code of your building site, then select the Go! button to view pricing information for this house plan.

Recent View

© 2023 Architects Northwest All Rights Reserved Powered By: Visualwebz