Plan Pricing

$0

EASTRIDGE

M3260A3F-0
  • Total Area:3260 Sq. Ft.
  • Garage Area:700 Sq Ft
  • Garage Size:3
  • Stories:2
  • Bedrooms:4
  • Full Baths:2
  • Half Baths:1
  • Width:80'-0"
  • Depth:40'-0"
  • Height:30'-0"
  • Foundation:Crawl Space
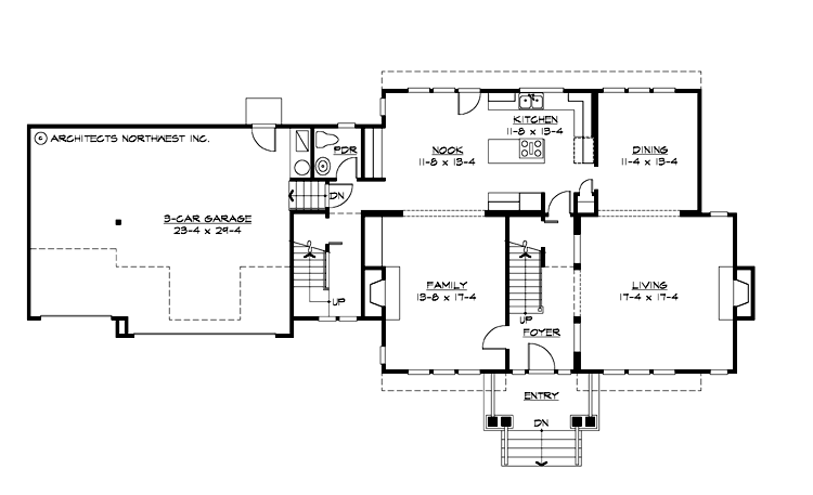
PLAN DETAILS FOR THE EASTRIDGE - PLAN M3260A3F-0
Area Summary
  • Total Area:3260 Sq. Ft.
  • Main Floor:1420 Sq. Ft.
  • Upper Floor:1840 Sq. Ft.
  • Garage Floor:700 Sq. Ft.
General Information
  • Stories:2
  • Width:80'-0"
  • Depth:40'-0"
  • Height:30'-0"
Architectural Style
  • Contemporary
  • Country
  • Farmhouse
Number of Rooms
  • Bedrooms:4
  • Full Baths:2
  • Half Baths:1
Garage
  • Garage Size:3
  • Garage Door Location:Front
Roof Pitches
  • Primary:8:12
Wall Heights
  • Main:9'-0"
  • Upper:8'-0"
Foundation Type
  • Crawl Space
Roof Framing
  • Combination
Floor Load
  • Live (lbs):40 PSF
  • Dead (lbs):10 PSF
Roof Load
  • Live (lbs):25 PSF
  • Dead (lbs):15 PSF
  • Wind:85 MPH
Design Features
  • Bonus Space @ & Upper Floor
  • Great Room
  • Laundry Room @ & Upper Floor
  • Master Bedroom @ Upper Floor Front
  • Contemporary Home Plans
  • Country House Plans
  • Farmhouse Home Plans
  • View Lot (Front) Plans
  • Wide Lot House Plans
Please enter the zip code of your building site, then select the Go! button to view pricing information for this house plan.

Recent View

© 2023 Architects Northwest All Rights Reserved Powered By: Visualwebz