Plan Pricing

$0

WESTOVER

M3262B2F-0
  • Total Area:2544 Sq. Ft.
  • Garage Area:473 Sq Ft
  • Garage Size:2
  • Stories:2
  • Bedrooms:3
  • Full Baths:2
  • Half Baths:1
  • Width:44'-0"
  • Depth:44'-0"
  • Height:27'-6"
  • Foundation:Crawl Space
PLAN DETAILS FOR THE WESTOVER - PLAN M3262B2F-0
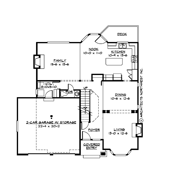
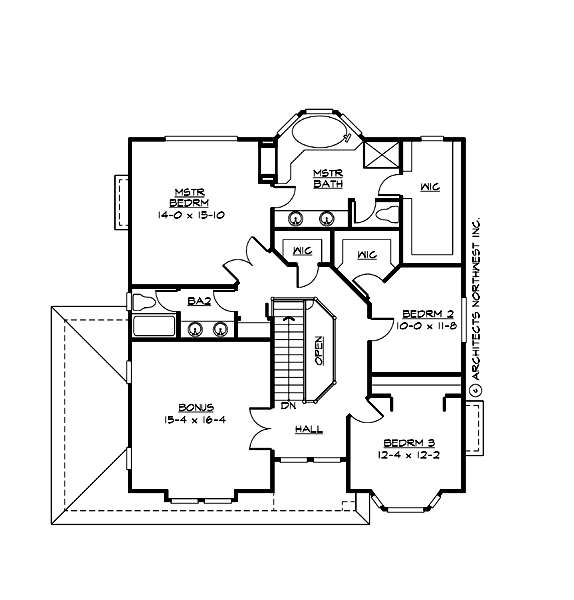
Area Summary
  • Total Area:2544 Sq. Ft.
  • Main Floor:1155 Sq. Ft.
  • Upper Floor:1389 Sq. Ft.
  • Garage Floor:473 Sq. Ft.
General Information
  • Stories:2
  • Width:44'-0"
  • Depth:44'-0"
  • Height:27'-6"
Architectural Style
  • Craftsman
  • Northwest
  • Traditional
Number of Rooms
  • Bedrooms:3
  • Full Baths:2
  • Half Baths:1
Garage
  • Garage Size:2
  • Garage Door Location:Front
Roof Pitches
  • Primary:6:12
Wall Heights
  • Main:9'-0"
  • Upper:8'-0"
Foundation Type
  • Crawl Space
Roof Framing
  • Trusses
Floor Load
  • Live (lbs):40 PSF
  • Dead (lbs):10 PSF
Roof Load
  • Live (lbs):25 PSF
  • Dead (lbs):15 PSF
  • Wind:85 MPH
Design Features
  • Bonus Space @ & Upper Floor
  • Great Room
  • Laundry Room @ Main Floor
  • Master Bedroom @ Upper Floor Rear
  • Craftsman House Plans
  • Northwest Floor Plans
  • Traditional House Plans
  • Narrow Lot House Plans
  • View Lot (Rear) Plans
Front Rendering

Westover Lane

M3262B2F-0DB
  • Total Area:3262 Sq. Ft.
  • Stories:3
  • Bedrooms:5
  • Full Baths:3
Please enter the zip code of your building site, then select the Go! button to view pricing information for this house plan.

Recent View

Front Rendering

Mount Baker

M1835A2F-0
  • Total Area:1835 Sq. Ft.
  • Stories:2
  • Bedrooms:4
  • Full Baths:2
© 2023 Architects Northwest All Rights Reserved Powered By: Visualwebz