Plan Pricing

$0

RIDGEWOOD

M3284A2F-0
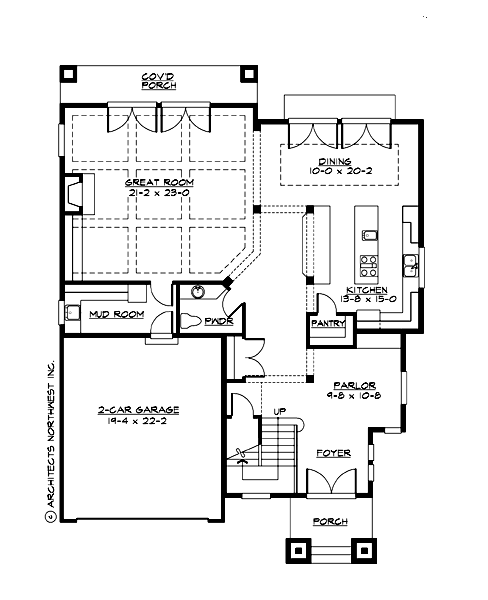
  • Total Area:3697 Sq. Ft.
  • Garage Area:462 Sq Ft
  • Garage Size:2
  • Stories:2
  • Bedrooms:4
  • Full Baths:2
  • Half Baths:1
  • Width:44'-0"
  • Depth:61'-0"
  • Height:25'-0"
  • Foundation:Crawl Space
PLAN DETAILS FOR THE RIDGEWOOD - PLAN M3284A2F-0
Area Summary
  • Total Area:3697 Sq. Ft.
  • Main Floor:1621 Sq. Ft.
  • Upper Floor:2076 Sq. Ft.
  • Garage Floor:462 Sq. Ft.
General Information
  • Stories:2
  • Width:44'-0"
  • Depth:61'-0"
  • Height:25'-0"
Architectural Style
  • Craftsman
  • Lodge
  • Shingle
Number of Rooms
  • Bedrooms:4
  • Full Baths:2
  • Half Baths:1
Garage
  • Garage Size:2
  • Garage Door Location:Front
Roof Pitches
  • Primary:6:12
Wall Heights
  • Main:9'-0"
  • Upper:8'-0"
Foundation Type
  • Crawl Space
Roof Framing
  • Combination
Floor Load
  • Live (lbs):40 PSF
  • Dead (lbs):10 PSF
Roof Load
  • Live (lbs):25 PSF
  • Dead (lbs):15 PSF
  • Wind:85 MPH
Design Features
  • Rear Porch
  • Great Room
  • Laundry Room @ Main & Upper Floor
  • Master Bedroom @ Upper Floor Rear
  • Craftsman House Plans
  • Lodge House Plans
  • Shingle House Plans
  • Narrow Lot House Plans
  • View Lot (Rear) Plans
Front Rendering

Ridgecreek

M3284A2F-0FB
  • Total Area:5201 Sq. Ft.
  • Stories:3
  • Bedrooms:5
  • Full Baths:3
Please enter the zip code of your building site, then select the Go! button to view pricing information for this house plan.

Recent View

© 2023 Architects Northwest All Rights Reserved Powered By: Visualwebz